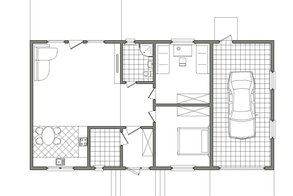
Проект односемейного дома "Проект №6" площадью 138.89 кв.м.
| Используемых уровней | 1 этаж |
| Площадь общая | 138.89 кв.м. |
| Площадь жилая | 59.62 кв.м. |
| Стены | бетон ячеистый |
| Перекрытия | деревянные |
| Крыша | не жилая |
| Материал крыши | металлочерепица |
| Гараж | да |
Эти файлы позволяют собирать обезличенные статистические данные о характеристиках пользовательских устройств, подсчитывать количество и длительность посещений сайта, анализировать использование пользователем сайта, определять наиболее и(или) наименее популярные страницы сайта.
Эти cookie используются для улучшения качества рекламы, предоставления персонализированной рекламы с использованием сервиса Mindbox. Отключение обработки рекламных файлов cookies не влияет на количество показываемой рекламы.
Эти cookies необходимы для правильного функционирования сайта и не могут быть отключены в нашей системе.
Нажимая на кнопку "Сохранить настройки", вы даете согласие на обработку файлов cookies в соответствии с Политикой в отношении обработки файлов cookies.
Для обеспечения удобства пользователей Realt.by, улучшения сервисов и предоставления персонализированных рекомендаций используются файлы cookies.
| Используемых уровней | 1 этаж |
| Площадь общая | 138.89 кв.м. |
| Площадь жилая | 59.62 кв.м. |
| Стены | бетон ячеистый |
| Перекрытия | деревянные |
| Крыша | не жилая |
| Материал крыши | металлочерепица |
| Гараж | да |
© 2005-2026Недвижимость на REALT.BY





