Регистрация

Информационное извещение о проведении открытых аукционных торгов по продаже объектов недвижимого имущества, расположенных по адресу: Брестская обл., Кобринский р-н, г. Кобрин, ул. Промышленная

Дата проведения: 30.09.2021 (завершен)

Организатор: Консалтинговое унитарное предприятие «Независимая экспертная компания»

Просмотров аукциона: 503

Категория: продажа коммерческой недвижимости

Местоположение: Брестская область, Кобринский район, Кобрин, Ул. Промышленная

ИНФОРМАЦИОННОЕ ИЗВЕЩЕНИЕ О ПРОВЕДЕНИИ ОТКРЫТЫХ АУКЦИОННЫХ ТОРГОВ

Дата, время, место проведения: 30 сентября 2021г. Начало аукционных торгов 14ч.00м. г. Брест, ул. Комсомольская,25, 2-й этаж, каб.206

Организатор торгов: Консалтинговое унитарное предприятие «Независимая экспертная компания», г. Брест, ул. Комсомольская,25, тел. факс. 8(0162)21-88-16, +375(29)798-40-10

Продавец объекта: ОАО «ДСТ №4 г. Брест», 224012, г. Брест, ул. Калинина, 63, тел.8(0162) 51-64-59

Наименование объекта торгов, продаваемого одним лотом

Начальная цена продажи с НДС

Задаток

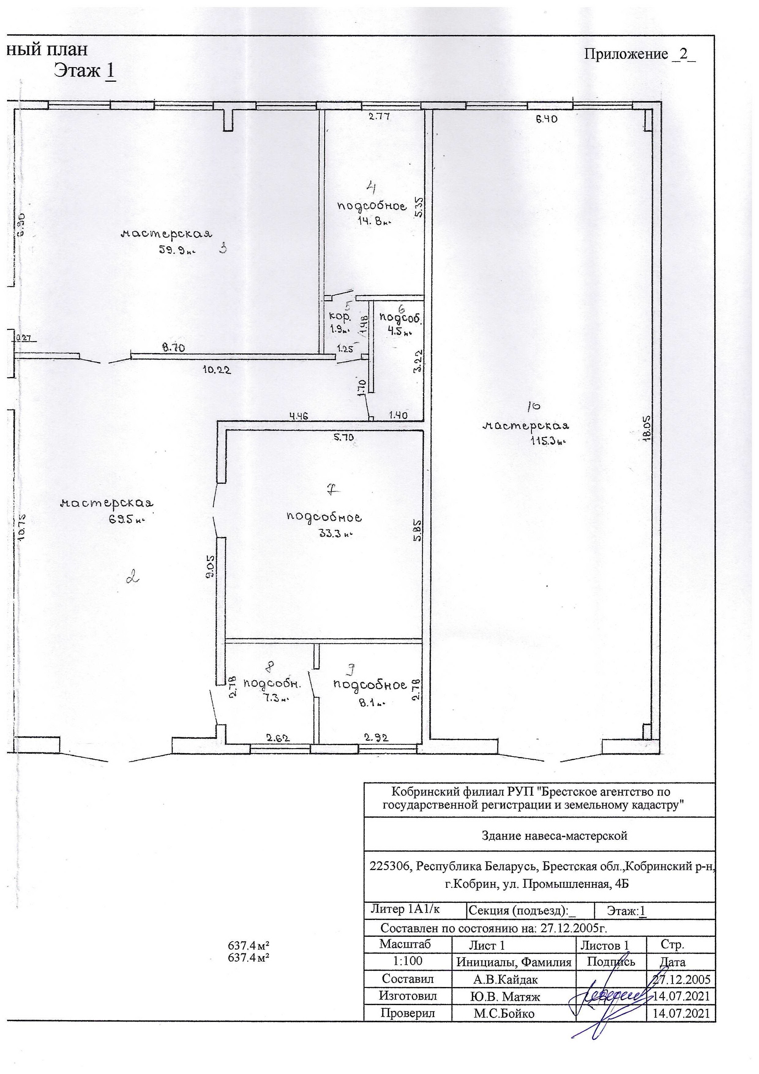
- Капитальное строение с инвентарным номером 123/С-7452, общей площадью 637,4 кв.м., объем – 3332 м.куб. расположенное по адресу: Брестская обл., Кобринский р-н, г. Кобрин, ул. Промышленная, 4Б. Наименование – здание навеса-мастерской. Год постройки – 1990, наружные стены – ж/б изделия, кирпич, перекрытия железобетон, кровля – рулонные кровельные материалы, электроснабжение. Составные части и принадлежности: а-Площадка (стоянка дорожной техники)- асфальтобетон площадью 800 м.кв., б-Площадка (возле мастерских) асфальтобетон площадью 990 м.кв.,  в-Площадка (стоянка автотранспорта) асфальтобетон площадью 3572 м.кв.,, г-Ограждение из глухих ж/б панелей, ворота.

- Капитальное строение с инвентарным номером 123/С-25698, общей площадью 588,0 кв.м., объем – 3295 м.куб., расположенное по адресу: Брестская обл., Кобринский р-н, г. Кобрин, ул. Промышленная, 4Б/1. Наименование – здание навеса-склада. Год постройки – 1990, наружные стены – ж/б блоки, перекрытия железобетон, кровля – рулонные кровельные материалы, электроснабжение. Составные части и принадлежности: а-Площадка асфальтобетон площадью 130 м.кв..

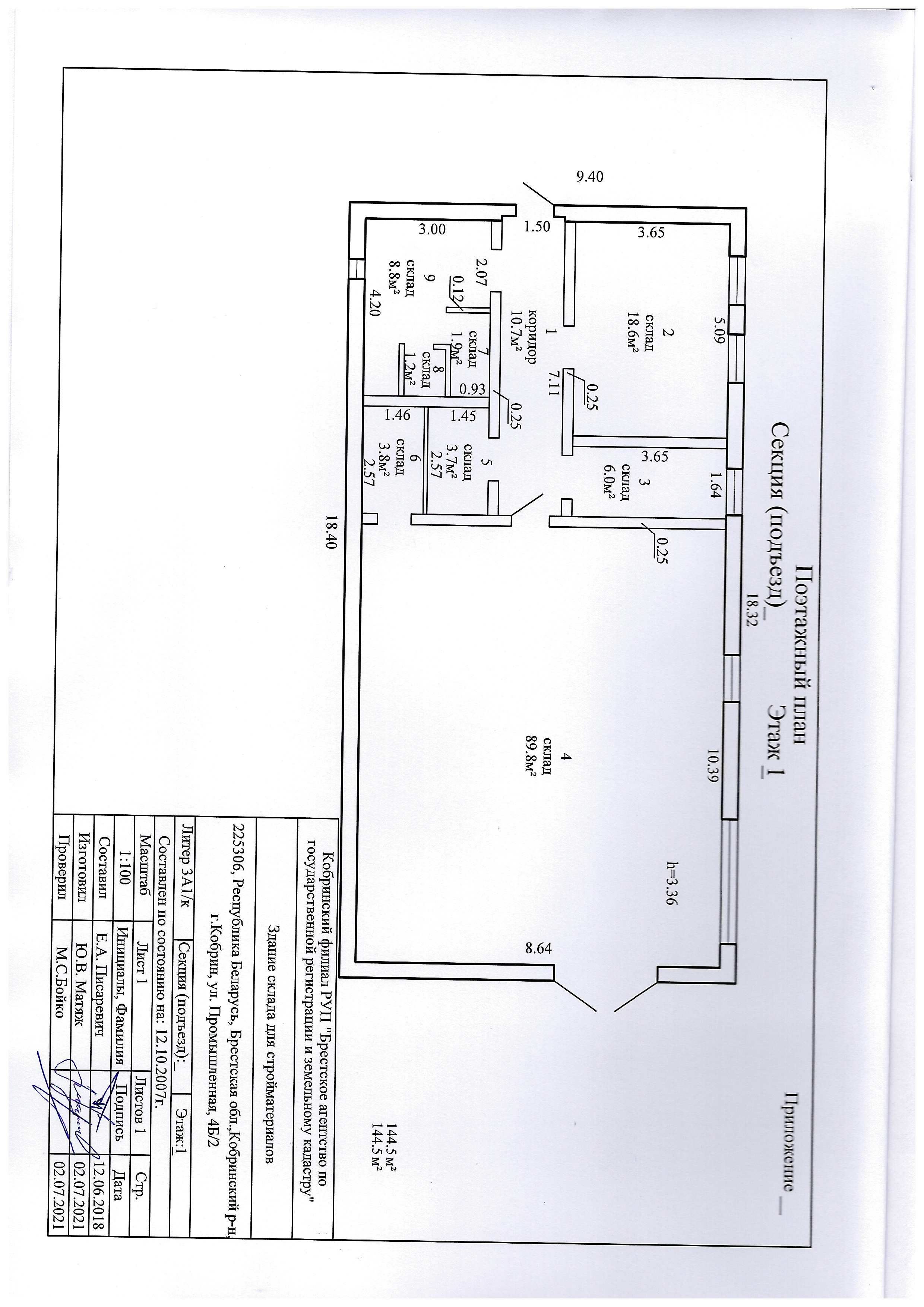
- Капитальное строение с инвентарным номером 123/С-24537, общей площадью 144,5 кв.м., объем – 633 м.куб., расположенное по адресу: Брестская обл., Кобринский р-н, г. Кобрин, ул. Промышленная, 4Б/2. Наименование – здание склада для стройматериалов. Год постройки – 1991, наружные стены – кирпич, перекрытия железобетон, кровля – рулонные кровельные материалы, электроснабжение.

Имущество расположено на земельном участке с кадастровым номером 124350100001008900 (площадь 0,9118га).

Условие продажи: Покупатель за свой счет обязуется установить забор, разделяющий земельный участок, на котором расположено реализуемое имущество, и земельный участок ОАО «ДСТ №4 г.Брест».

230 520,00 белорусских рублей (двести тридцать тысяч пятьсот двадцать рублей 00 копеек)

23 052,00 белорусских рублей (двадцать три тысячи пятьдесят два рубля 00 копеек)

Информация по заключению и срокам оплаты по договору купли-продажи объекта

Договор купли-продажи заключается с победителем в течение 10 календарных дней с момента подписания протокола о результатах аукциона.

Если между продавцом и покупателем (победитель аукциона либо единственный участник аукциона, согласившийся приобрести предмет аукциона по начальной цене, увеличенной на 5%) в течение срока, установленного для подписания договора купли-продажи, не достигнута договоренность по срокам и о порядке оплаты за предмет аукциона, такая оплата должна быть произведена в течение 30 (тридцати) календарных дней после заключения договора купли-продажи.

Государственная регистрация сделки купли-продажи объекта осуществляется за счет победителя аукциона в течение месяца после передачи имущества по акту приема-передачи

Шаг аукциона составляет 5% (пять процентов) от предыдущей названной аукционистом цены. Победителем торгов признается участник, предложивший наибольшую цену. Объект не может быть продан по начальной цене. В случае, если аукцион признан несостоявшимся в силу того, что заявление на участие в нем подано только одним участником, объект аукциона продается этому участнику при его согласии по начальной цене, увеличенной на 5% (пять процентов). Победитель (Покупатель) аукциона оплачивает вознаграждение за организацию и проведение аукциона в размере 3% (трех процентов) от цены продажи предмета аукциона, а также затраты на организацию и проведение аукциона, в течение 3-х рабочих дней со дня проведения торгов и подписания протокола о результатах аукциона. Дополнительная информация по объекту торгов, порядок проведения аукциона, а также перечень документов необходимых для участия в аукционе размещены на сайте www.nek.by в разделе «Аукционы». Контактные телефоны в г. Бресте: 8(0162)21-88-16, +375(29)798-40-10, e-mail: ocenka@nek.by.

Заявления с необходимыми документами на участие в аукционе принимаются по адресу г. Брест, ул. Комсомольская, 25, каб. 206, с 8.30 до 16.00 по рабочим дням по 29 сентября 2021 года включительно.

 Капитальное строение с инвентарным номером 123/С-7452

Здание навеса-мастерской

Капитальное строение с инвентарным номером 123/С-25698

Капитальное строение с инвентарным номером 123/С-24537