Регистрация

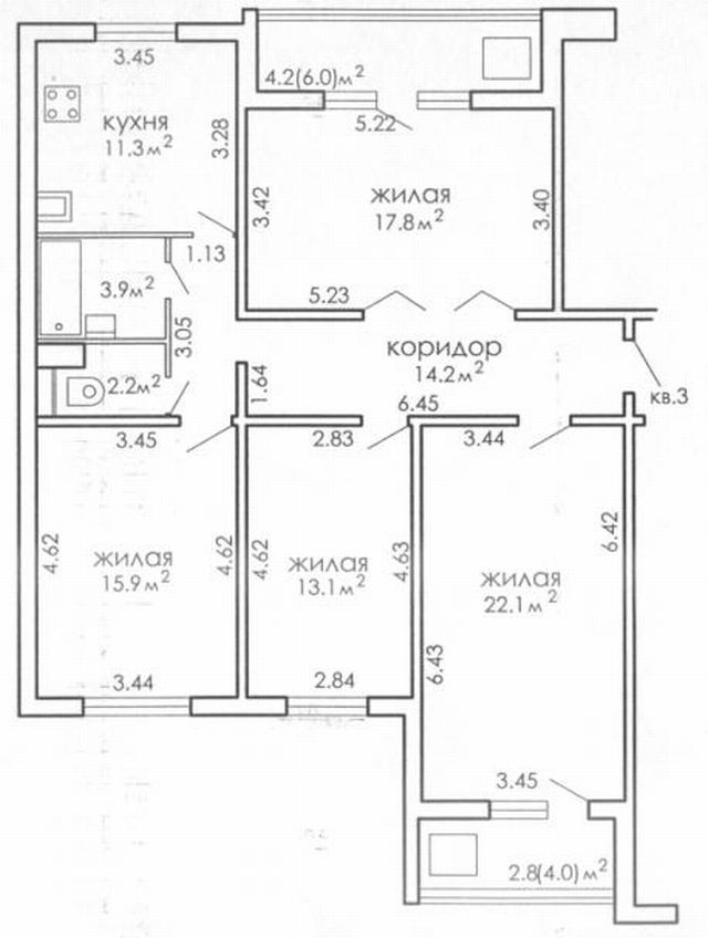
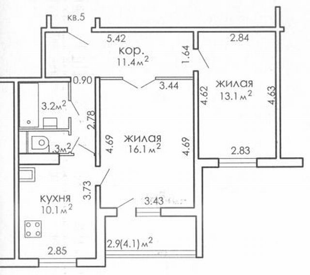
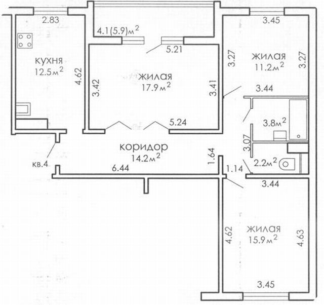
Открытый аукцион по продаже квартир без отделки в доме № 49 по ул. Притыцкого в г. Минске

Дата проведения: 08.08.2007 (завершен)

Организатор: Минский городской центр недвижимости КУП

Просмотров аукциона: 1384

Категория: продажа квартир

Местоположение: Минская область, Минск

1) Аукцион состоится 8 августа 2007 г. в 11.00 по адресу: г. Минск, ул. К Маркса 39, зал аукционов.

2) К участию в аукционе допускаются физические лица - граждане Республики Беларусь. 

3) Для участия в аукционе необходимо представить следующие документы в УП «Минский городской центр недвижимости»: заявление на участие в аукционе; заявление об ознакомлении с объектом; соглашение о правах и обязанностях сторон; ксерокопию паспорта; заверенные банком копии платежных поручений подтверждающих внесение: а) задатка в сумме 10% начальной цены; б) платы за регистрацию в размере ¼ минимальной заработной платы.

Оплата осуществляется по безналичному расчету в белорусских рублях на расчетный счет УП «Минский городской центр недвижимости» № 3012024570010 в филиале ОАО «Белпромстройбанк» по Минской области, код 153001331, УНН 190398583. 

Квартиры продаются только для использования под жилье. Граждане, выигравшие торги, обязаны вступить в товарищество собственников. Договор купли-продажи квартир с гражданами должен быть нотариально удостоверен и зарегистрирован в Республиканском унитарном предприятии «Минское городское агентство по государственной регистрации и земельному кадастру». Расходы, связанные с совершением нотариальных действий и государственной регистрацией договора купли-продажи и основанного на нем перехода права собственности оплачиваются победителем аукциона.

Задаток возвращается всем участникам аукциона, кроме участников аукциона, выигравших торги, в течение 10 рабочих дней со дня проведения аукциона или с момента регистрации организатором аукциона отказа от участия в аукционе.

Участнику аукциона, выигравшему торги, задаток не возвращается, а учитывается при окончательных расчетах.

При подаче документов на участие в аукционе физическое лицо предъявляет паспорт, его представитель - паспорт и доверенность, удостоверенную нотариально.

Все участники аукциона перед подачей заявления на участие в торгах должны детально ознакомиться с утвержденными  Условиями проведения аукциона и объектом.

Оплата стоимости приобретенных на аукционе квартир осуществляется в установленном для физических лиц порядке по безналичному расчету в белорусских рублях в течение 14 календарных дней со дня подписания протокола о результатах аукциона на расчетный счет продавца. Договор купли-продажи квартир подписывается в течение 14 календарных дней со дня внесения победителем полной оплаты за квартиру.

Победитель аукциона помимо оплаты за объект обязан в сроки, указанные в протоколе о его результатах, произвести оплату услуг организатору аукциона сверх цены продажи в размере 1,5%  от окончательной стоимости квартиры.

Заявления  на  участие  в  аукционе и  необходимые  документы  принимаются  по  7 августа 2007 г. до 17.00 по адресу: г. Минск, ул. К. Маркса, 39, каб. 6 в понедельник – четверг с 8.45 до 18.00, в пятницу с 8.45 до 16.45 по 7 августа 2007 г. до 17.00 включительно.

Телефон для справок: 227-40-22. Для осмотра квартир необходимо обращаться по телефонам: 207-19-15; 207-14-77.

Прикрепленные документы:

http://mgcn.by/auctions/sale/00000120.html