Продажа здания в Гродно
1 080 000 р.
Тип
Площадь
Описание
Продажа здания столовой, расположенного по адресу: Гродненская область, г.Гродно, ул.Гаспадарчая, 29.
Общая площадь согласно техническому паспорту – 3076,8м2. Год постройки – 1976г.
Назначение по техническому паспорту – здание специализированное, для общественного питания.
Представляет собой двухэтажное здание с техническим этажом без подвальных помещений, со сборным ж/б каркасом, сборными ж/б перекрытием и покрытиями, стеновым панельным ограждением и плоской рулонной кровлей.
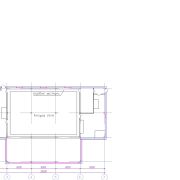
На первом этаже здания столовой расположены вестибюли с гардеробной, складские, бытовые, производственные, административные помещения, помещения холодильников, моечных, санузлы и помещения инженерного оборудования (венткамеры, теплоузел).
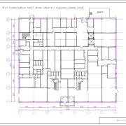
На втором этаже расположены столовая с обеденными залами и кухней, буфет, производственные, складские и административные помещения, моечные.
Этажи сообщаются между собой при помощи лестниц, расположенных в вестибюлях.
В пределах технического этажа расположены помещения инженерных сетей (венткамеры и вентшахты), машинное отделение грузовых лифтов с отдельными входами, а также второй свет помещений кухни и складов. Снаружи с тыльной стороны здания столовой устроена рампа с отдельно-стоящим навесом для разгрузки грузового транспорта в помещение склада.
Высота этажей здания столовой – 3,3м (1 этаж), 4,2м (2 этаж) и 3,3м (техэтаж), с высотой помещений 3,0м, 3,9м и 3,0м соответственно.
Основными конструктивными элементами здания являются:
-фундаменты под колонны – сборные ж/б столбчатые стаканного типа;
-фундаменты под стены – сборные ж/б цокольные панели; ленточные из сборных ж/б блоков стен подвала;
-колонны, ригели, диафрагмы жесткости – сборные ж/б;
-стеновое ограждение – сборные ж/б стеновые панели из керамзитобетона; кирпичная кладка из силикатного и керамического кирпича;
-внутренние стены и перегородки – кирпичная кладка из силикатного и керамического кирпича;
-перекрытие и покрытия – сборные ж/б многопустотные плиты, монолитные ж/б участки;
-кровля над вторым этажом – совмещенная рулонная малоуклонная с внутренним организованным водостоком;
-кровля над техническим этажом – совмещенная рулонная малоуклонная с наружным организованным водостоком на уровень кровли второго этажа;
-оконные заполнения – деревянные створчатые раздельные рамы с двойным остеклением; деревянные створчатые спаренные рамы с двойным остеклением; из профилей ПВХ со стеклопакетами;
-дверные заполнения – одно- двупольные, деревянные филенчатые; металлические; из профилей ПВХ со стеклопакетами и вставками из утепленного листового ПВХ;
-полы – первого этажа – бетонные по грунту, второго и технического этажа – цементно-песчаная стяжка по плитам перекрытия. Покрытия полов – мозаичный шлифованный бетонный пол, керамическая плитка, линолеум, ламинат;
-лестницы внутренние – сборные ж/б марши с площадками;
-крыльца – монолитные ж/б площадки по грунту с монолитными бетонными ступенями, пандусами;
-навес над рампой – со стойками и балками из стальных прокатных профилей, монолитной ж/б плитой покрытия и плоской рулонной малоуклонной скатной кровлей.
Инженерное оборудование объекта:
-электроснабжение, холодное, горячее водоснабжение и канализация – централизованная система;
-отопление – центральное;
-вентиляция – с естественным и принудительным побуждением;
-грузовые лифты (2шт).-вентиляция – приточно-вытяжная; естественная;
Состояние здания удовлетворительное, здание частично эксплуатируется. Состояние основных конструкций – фундамента, несущих конструкций, стен, перекрытий – без дефектов, снижающих несущую способность. Имеется подробный технический отчет с обследованием состояния строительных конструкций. Может быть выслан заинтересованному покупателю на почту в электронном виде.
Территория участка благоустроена, вокруг здания устроены тротуары, площадки и проезды с покрытием из асфальтобетона и бетона. Площадь 0,328 Га. Назначение участка – для обслуживания здания столовой.
В стоимость включен НДС. Окончательная стоимость обсуждается.
Параметры объекта
- Тип объекта
Здание
- Площадь участка
33 сотки
- Площадь общая
3076.80 м²
- Этажность
2
- Год постройки
1976
- Материал стен
Кирпичный
- Высота потолков
3 м
- Ремонт
Строительная отделка
- Электроснабжение
Есть
- Естественное освещение
Есть
- Вода
Есть
- Санузел
2 санузла
- Принадлежность объекта
Государственная
- НДС
НДС включен
- Юридический адрес
Да
- Номер договора
7/2 от 03.02.2026
Оснащение
Рампа
Отдельный вход
Примечание
Местоположение
- Область
- Район
Гродненский район
- Населенный пункт
- Улица
- Номер дома
27
- Район города
- Координаты
53.712685, 23.825432
