Здание бывшего общежития.
97 293 р.
Тип
Площадь
Этаж
Описание
Здание бывшего общежития.
Данное здание находится на ул 1 мая 48, что обеспечивает легкий доступ к основным транспортным артериям, общественному транспорту и всей необходимой инфраструктуре. Ваша новая собственность может стать не только местом для жилья, но и площадкой для реализации различных бизнес-идей – от гостиничного и хостельного бизнеса до многоквартирного жилого комплекса.
Это идеальный вариант для тех, кто готов вложить свои силы и средства в восстановление объекта, чтобы создать нечто уникальное и востребованное.
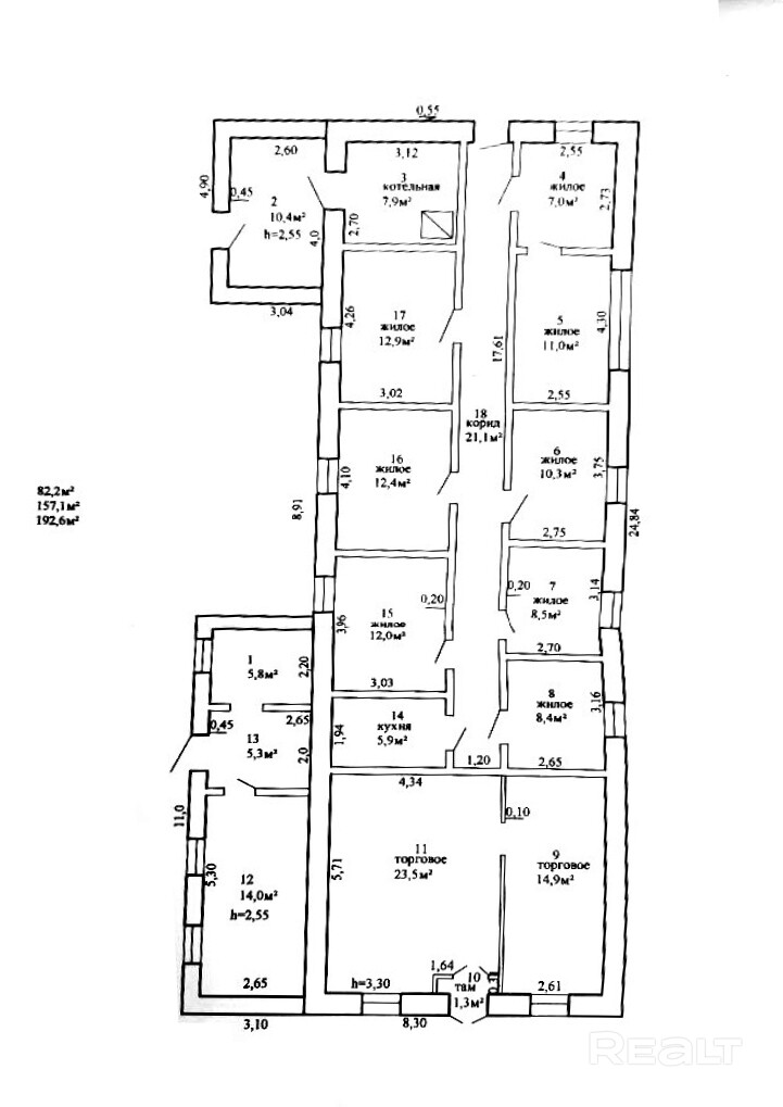
общая площадь 192м2.
Вы можете использовать это помещение для создания самого разнообразного бизнеса – от общежития до коворкинга или даже культурного центра. Варианты ограничены лишь вашей фантазией!
Преимущества этого объекта очевидны, и не стоит затягивать с принятием решения. В действительности такое предложение встречается не так часто, и ваша возможность стать владельцем этого многофункционального пространства может уйти к другому. Мы готовы предоставить всю необходимую информацию и ответить на все ваши вопросы.
Лицензия: №02240/362 от 31.07.2018, Министерство юстиции РБ
Параметры объекта
- Тип объекта
Здание
- Площадь общая
192.60 м²
- Этаж / этажность
1 / 1
- Высота потолков
2.7 м
- Ремонт
Нормальный
- Отопление
Есть
- Электроснабжение
Есть
- Естественное освещение
Есть
- Вода
Есть
- Санузел
Есть
- Принадлежность объекта
Частная
- Юридический адрес
Да
- Номер договора
493/1 от 31.03.2025
Александра Иванова
Агент по недвижимости
Примечание
Местоположение
- Область
- Район
- Населенный пункт
- Улица
- Номер дома
48
- Координаты
53.934980239, 25.767418511
