Купить помещение, г. Гродно, Озерское ш., 41/7
100 р./м²
Продажа
Следить за ценой
Помещение
Тип
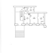
38.80 м²
Площадь
1 из 2
Этаж
03.06.2025ID 3659566
Параметры объекта
- Тип объекта
Помещение
- Площадь участка
1.9 сотки
- Площадь общая
38.80 м²
- Этаж / этажность
1 / 2
- Раздельных помещений
1
- Материал стен
Кирпичный
- Высота потолков
2.5 м
- Ремонт
Нормальный
- Отопление
Есть
- Электроснабжение
Есть
- Естественное освещение
Есть
- Принадлежность объекта
Частная
- Аукцион
Да
Продавец
Гродненское
Контактное лицо
Примечание
Продается нежилое помещение общей площадью 38,8 м.кв., расположенное на 1-м этаже 2-х этажного капитального строения по адресу: г.Гродно, шоссе Озерское, 41-7.
Местоположение
- Область
- Район
Гродненский район
- Населенный пункт
- Улица
- Номер дома
41/7
- Район города
- Координаты
53.690622, 23.871444
