3-комнатная квартира ул. Виктора Глухова д. 24
259 311 р.
3 284 р.≈ 1 165 $ за м²
Общая
Жилая
Этаж
Описание
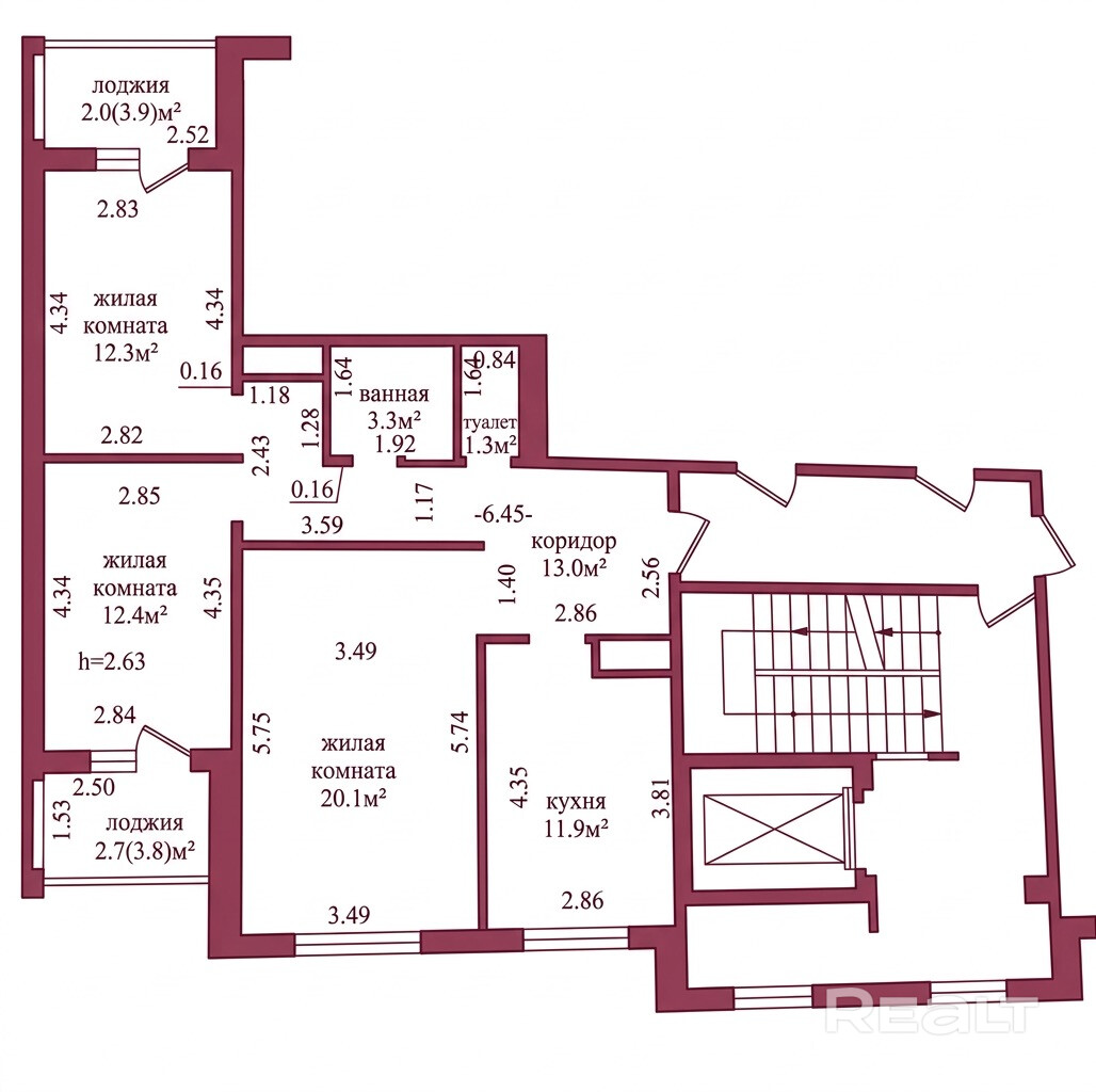
Представляем вашему вниманию просторную трехкомнатную квартиру, расположенную на 2-ом этаже 8-этажного панельного дома 2021 года постройки. Дом находится в молодом, динамично развивающемся микрорайоне Грандичи, по адресу: ул. Виктора Глухова, 24.
Общая площадь квартиры по СНБ составляет 79 м2, жилая — 45 м2. Квартира радует своей удачной планировкой: просторные комнаты по 12,4 м2, каждая из которых их имеется выход на обустроенную лоджию, гостиная - 20 м2. Большая и светлая кухня, площадью 12 м2 , укомплектована кухонным гарнитуром и бытовой техникой.
На полу в комнатах уложен ламинат, в коридоре — плитка. Санузел и ванная комната облицованы плиткой, двери выполнены в едином стиле, качественная металлическая входная дверь.
Благоустроенный двор с детской площадкой, с концепцией «двор без машин». В шаговой доступности — вся необходимая инфраструктура для комфортной жизни: остановки общественного транспорта, продовольственные магазины, аптеки, школа. детский сад. Отличное транспортное сообщение и удобные подъездные пути позволят вам быстро добраться в любую точку города.
Мы готовы оказать помощь в продаже вашей недвижимости для покупки этой замечательной квартиры. Гарантируем полное юридическое сопровождение сделки. Работаем с различными формами оплаты: кредит, семейный капитал, жилищный баланс. Звоните, будем рады выслушать ваши предложения! Рассмотрим обмен на 2-х комнатную квартиру с Вашей доплатой.
Параметры объекта
- Количество комнат
3
- Раздельных комнат
3
- Площадь общая
79 м²
- Площадь жилая
45 м²
- Год постройки
2021
- Этаж / этажность
2 / 8
- Балкон
Лоджия
- Собственность
Частная
- Условия продажи
Чистая продажа
- Номер договора
220/17 от 17.03.2026
Примечание
Местоположение
- Область
- Район
- Населенный пункт
- Улица
- Номер дома
24
- Район города
- Координаты
53.7214, 23.8798
