3-комнатная квартира г. Гродно, ул. Болдина д. 12А
232 020 р.
3 160 р.≈ 1 121 $ за м²
Общая
Жилая
Этаж
Описание
Продается просторная, светлая трехкомнатная квартира в экологически чистом районе г. Гродно, ул. Болдина, 12А. Функциональная, продуманная до мелочей планировка. Дом отличается удачным расположением, хорошая транспортная развязка. До центра города 5 минут на машине, 20 минут пешком.
Развитая инфраструктура (магазины, школы, детские сады, лесопарк «Пышки», р. Неман с оборудованным пляжем, областная больница и другие медицинские учреждения, баня, стадион, ледовый дворец). Квартира в панельном доме с качественным новым ремонтом, использовались дорогие строительные материалы.
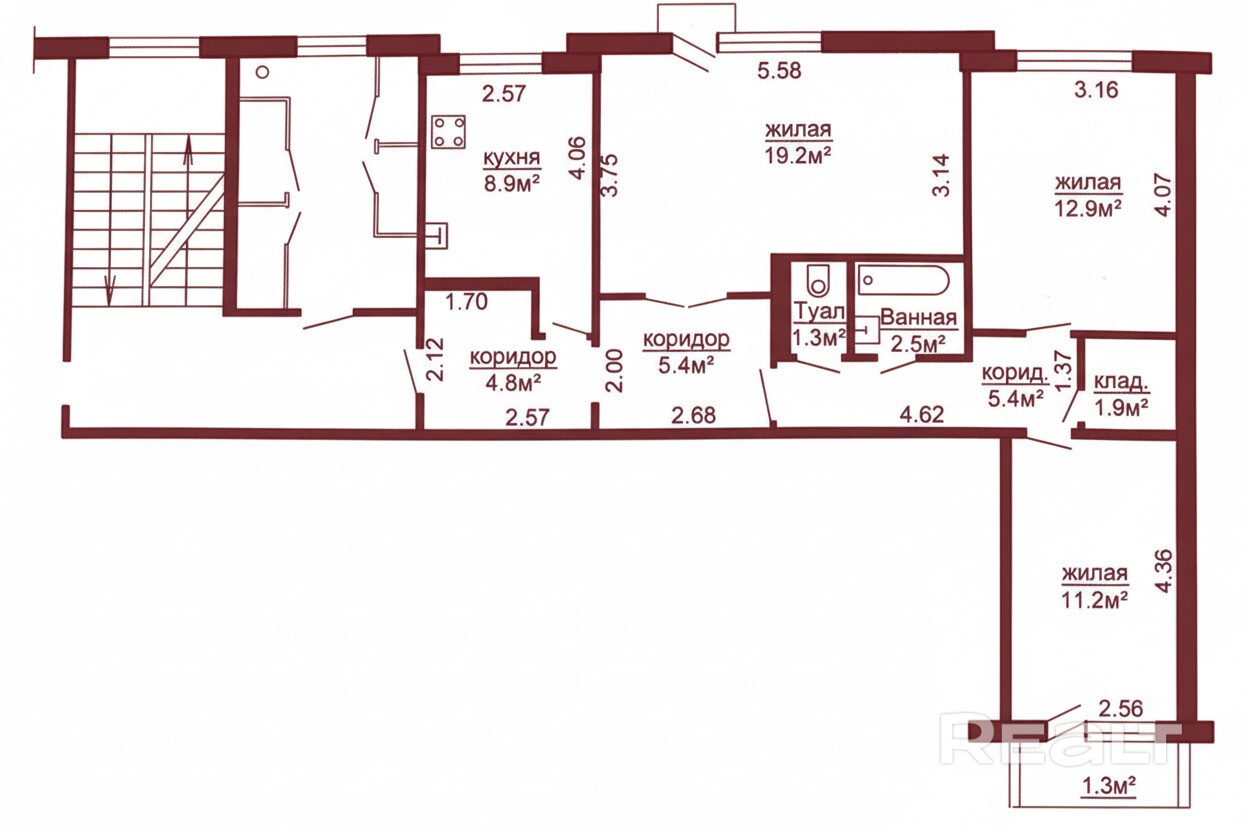
2 этаж 9-ти. этажного дома 1978 года постройки. Общая площадь 73.4. кв.м., жилая 41,3 кв.м., кухня 8.1 кв.м. Окна – ПВХ. На кухне уложен теплый пол. В квартире заменена вся электропроводка на медную. Сан. узел раздельный, облицован плиткой, установлен бойлер. Материал полов – плитка, ламинат. В квартире остается новая кухня с встроенной бытовой техникой BOSCH, посудомоечная машина, встроенная мебель.
Бесплатное сопровождение для покупателя!!! Работаем с кредитом, "Жилищным балансом". Поможем продать вашу недвижимость для покупки этой.
За подробной информацией просьба обращаться по телефону и пишите Viber, Telegram
Параметры объекта
- Количество комнат
3
- Раздельных комнат
3
- Площадь общая
73.4 м²
- Площадь жилая
41.3 м²
- Год постройки
1978
- Этаж / этажность
2 / 9
- Балкон
Лоджия
- Собственность
Частная
- Условия продажи
Чистая продажа
- Номер договора
146/17 от 23.02.2026
Примечание
Местоположение
- Область
- Район
- Населенный пункт
- Улица
- Номер дома
12/А
- Район города
- Координаты
53.692, 23.8038
