1-комнатная квартира ул. Малыщинская д.12
169 116 р.
3 907 р.≈ 1 386 $ за м²
Общая
Жилая
Этаж
Описание
Продается отличная светлая 1-комнатная квартира в востребованном районе города , расположенная на улице Малыщинская д.12. Панельный дом 2012 года, 1 этаж из 9. Прекрасное местоположение дома.
Современный район, уютный зеленый двор, аккуратный чистый подъезд, спокойные соседи сделают ваше проживание комфортным.
Развита инфраструктура дома : магазины, поликлиника, евроопт, школы, детские сады, заправки, кафе , хорошая транспортная развязка существенно сэкономят время прибывания в пути .
Рядом с домом удобная парковка , есть зарядка для электромобилей , хорошая современная детская площадка.
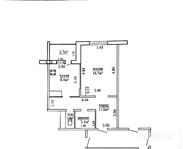
Параметры квартиры: общая площадь- 43,3 кв м по СНБ , жилая площадь- 16,7 кв м, кухня-8,4 кв м.
Материал полов: плитка (санузлы , часть коридора ) и ламинат .
Санузел раздельный, в отличном состоянии . Имеется светлая утепленная застекленная лоджия.
Квартира продается полностью с мебелью и с техникой . Все выдержано в едином стиле. В квартире все продумано до мелочей. Входная металлическая дверь обеспечит безопасность. Натяжные потолки по всей квартире. Встроенная высокая кухня со встроенной техникой: газовая варочная панель Bosh, электрический духовой шкаф Вosh, вытяжка, микроволновая печь ,стиральная машина, холодильник, телевизор, два дивана. Продуман гардеробный шкаф в коридоре. В комнате создана уютная обстановка, есть диван, кровать, комод и телевизор. Прекрасный вид из окна.
Идеально подойдет всем, кто ценит хорошее расположение дома и удобную планировку. Может использоваться как готовый бизнес .
Более подробно- по телефону.
Звоните!
А лучше- приезжайте!
Оперативный показ и юридическое сопровождение сделки гарантируем.
Работаем с привлечением кредитных средств и с Жилищным балансом.
Параметры объекта
- Количество комнат
1
- Площадь общая
43.3 м²
- Площадь жилая
16.7 м²
- Год постройки
2012
- Этаж / этажность
1 / 9
- Балкон
Лоджия
- Собственность
Частная
- Условия продажи
Чистая продажа
- Номер договора
421/17 от 03.09.2025
Примечание
Местоположение
- Область
- Район
- Населенный пункт
- Улица
- Номер дома
12
- Район города
- Координаты
53.71, 23.8579
