Хорошая дача в районе Каменки (СТ Гудок)
70 465 р.
Тип
Участок
Общая
Описание
Продаётся хороший дачный домик в отличном месте в районе деревни Каменка, садовое товарищество «Гудок» (Гродненская обл., Гродненский р-н, Коптевский с/с, СТ «Гудок», участок 149).
Дача продается со всем содержимым! Можно сразу заселяться и наслаждаться отдыхом!
Участок общей площадью 12,84 соток.
Вода — сезонная, на участке есть колодец, отопление — печное, электричество. Есть возможность приготовления пищи на газовой плите (есть газовый болон). Для уютных вечеров в доме предусмотрен камин.
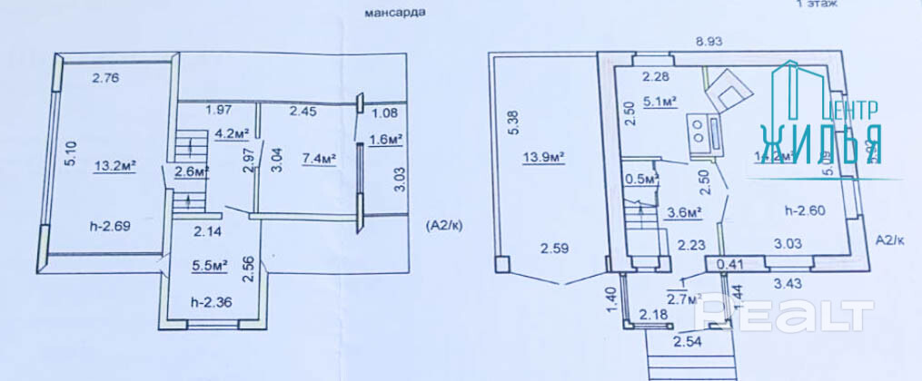
Дачный домик 1997 года постройки. Общая площадь составляет 72,9 м.кв.
Кровля — шифер, окна - стеклопакеты ПВХ, стены – кирпич.
Есть гараж, и хороший просторный погреб.
Участок огорожен, есть возможность парковки автомобиля на участке (ворота). Удобный подъезд к дому.
На первом этаже расположены гостиная с оборудованной кухней, газ – привозные болоны, гараж.
На 2-ом этаже три спальни с двумя террасами.
Для приятного времяпровождения предусмотрено несколько лавочек со столом, летний душ, есть отдельно стоящий летний домик. Также есть хоз.постройки (для хоз. инвентаря и дровница), две теплицы. Туалет на улице.
Дом находится в хорошем месте, вокруг лес (грибные и ягодные места).
До города 11 км (17 минут езды на автомобиле).
Хорошее транспортное сообщение. В летнее время три раза в день ездит поезд, в зимнее – два. Помимо этого автобус.
На участке расположены плодоносящие кусты и деревья: яблони, груша, вишня, три черешни, слива, два грецких ореха, а также много другое.
Отличное место для комфортного времяпрепровождения Вашей семьи!
Параметры объекта
- Тип объекта
Дача
- Площадь участка
12.8 соток
- Площадь общая
72.9 м²
- Уровней в доме
2
- Год постройки
1997
- Материал стен
Кирпичный
- Материал крыши
Шифер
- Отопление
Печное
- Газ
Баллон
- Канализация
С/у на улице
- Электроснабжение
Есть
- Вода
Колодец
- Камин
Да
- Гараж
Есть
- Статус земли
Пожизненно наследуемое владение
- Возможен торг
Да
- Условия продажи
Чистая продажа
- Номер договора
184/1 от 16.07.2024
Инфраструктура
Рядом лес
Сад
Хозпостройки
Теплица
Елизавета
Контактное лицо
Примечание
Местоположение
- Область
- Район
- Населенный пункт
- Номер дома
149
- Сельсовет
Коптёвский с/с
- Координаты
53.579972, 23.767006
