Снять магазин, аг. Бенякони, ул. Кооперативная (Вороновский р-н, Гродненская область)
6 р./м²
Аренда
Следить за ценой
Магазин
Тип
1106.10 м²
Площадь
20.12.2024ID 3116465
Параметры объекта
- Тип объекта
Магазин
- Площадь общая
1106.10 м²
- Этажность
3
- Год постройки
1971
- Класс
B
- Материал стен
Кирпичный
- Высота потолков
4 м
- Ремонт
Без отделки
- Отопление
Есть
- Электроснабжение
Есть
- Естественное освещение
Есть
- Вода
Есть
- Газ
Есть
- Санузел
Есть
- Парковка
Есть
- Принадлежность объекта
Частная
- НДС
НДС не включен
- Расположение
Частный сектор
Оснащение
Оживленное место
Отдельный вход
Примечание
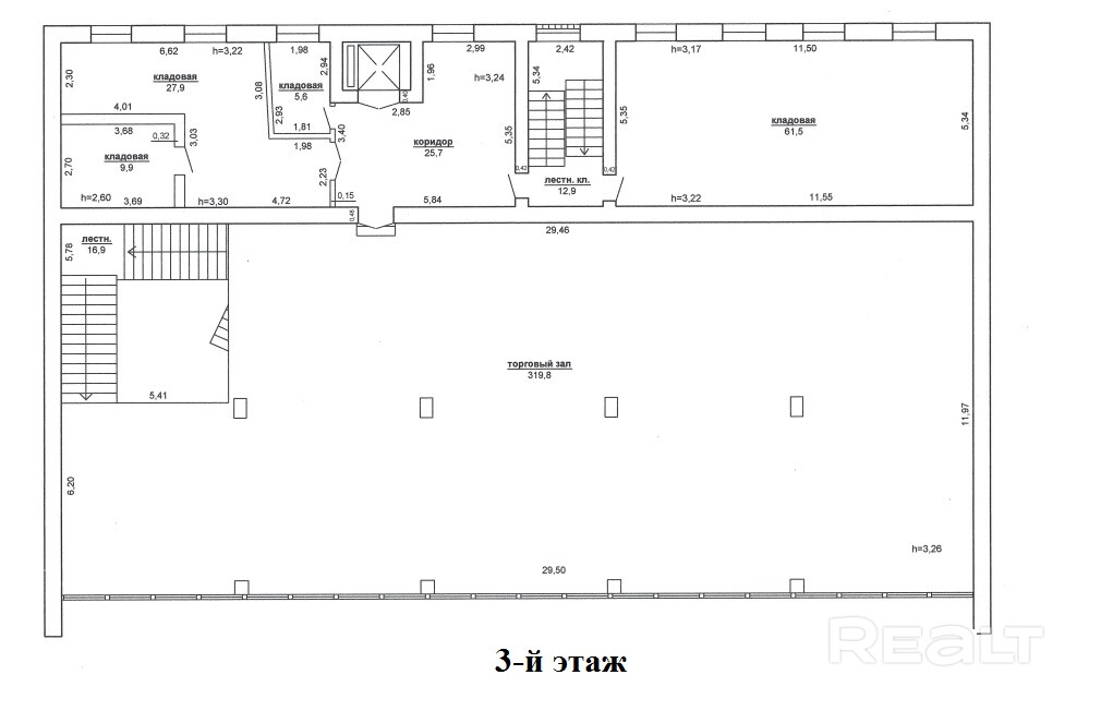
На погранпереходе с Литвой (трасса М11) предлагается в аренду трёхэтажное здание магазина, состоящее из торговых и складских помещений, площадью 1106,1 м², расположенное в центре аг. Бенякони, ул. Кооперативная, 1А..Требуется ремонт. На период проведения ремонтных работ представляются арендные каникулы. Возможен торг. Дополнительные вопросы по телефону.
Местоположение
- Область
- Район
- Населенный пункт
- Улица
- Сельсовет
Беняконский с/с
- Координаты
54.254998, 25.359126
