Купить торговое помещение, г. Рогачев, ул. Семена Свердлова, 14/В
648 278 р.
Тип
Площадь
Этаж
Описание
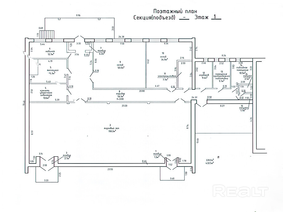
Продажа отдельно стоящего здания по адресу г. Рогачев, ул. Семёна Свердлова 14В общей площадью 430,5 м2 с якорным арендатором.
Помещение сочетает в себе комбинированный формат открытого пространства и отдельных кабинетов. Назначение - "Здание специализированное розничной торговли". Помещение сдано в аренду под магазин "Хит!".
Отделка:
- напольное покрытие: плитка;
- отделка стен: окрашены;
- потолок типа Armstrong.
Инженерные системы и коммуникации:
- кондиционирование;
- центральное водоснабжение и отопление;
- пожарная сигнализация.
Result Estate — ваш надёжный партнёр на рынке недвижимости.
20 лет опыта наших агентов по недвижимости — это ваш ключ к идеальной сделке: глубокое знание рынка, эксклюзивные предложения, юридическая безопасность и индивидуальный подход. Мы экономим ваше время, деньги и нервы, помогая купить, продать недвижимость быстро, выгодно и с уверенностью в результате!
Все актуальные предложения в о....ем сайте.
Опишите свои пожелания — и мы ... варианты!
ООО «Результативная недвижимость», лицензия выдана Минюстом 26.09.2023 № 02240470, УНП 193703497
Связываясь с нами по данному объекту, Вы даете свое согласие на сбор и обработку персональных данных автоматически.
Параметры объекта
- Тип объекта
Торговое помещение
- Площадь общая
430.50 м²
- Этаж / этажность
1 / 1
- Раздельных помещений
8
- Ремонт
Хороший
- Отопление
Есть
- Электроснабжение
Есть
- Вода
Есть
- Санузел
Есть
- Принадлежность объекта
Частная
- НДС
НДС включен
- Номер договора
167/1 от 31.08.2025
Оснащение
Отдельный вход
Сергей Костюкевич
Агент по недвижимости
Примечание
Местоположение
- Область
- Район
- Населенный пункт
- Улица
- Номер дома
14/В
- Координаты
53.097365193, 30.045212106
