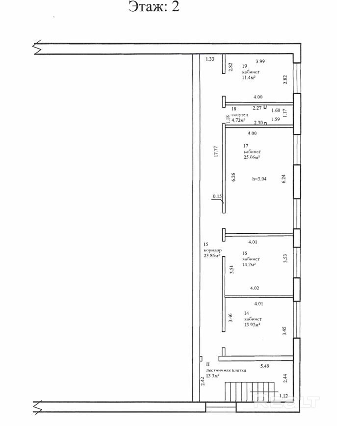
Продается отдельно стоящее здание площадью 1167 м2 со всеми коммуникациями.
899 750 р.
Продажа
Следить за ценой
Сфера услуг
Тип
1167 м²
Площадь
1 из 1
Этаж
9 часов назадID 3827848
Описание
Продается отдельно стоящее здание площадью 1167 м2 со всеми коммуникациями.
Включая автономную систему горячего и холодного водоснабжения, канализация и отопление.
Отлично подходит под любой формат бизнеса.
На данный момент размещается крупный ритэйлер “Светофор”.
Очень насыщенный трафик покупателей.
Фактически готовый бизнес без вложений.
На период с 7 по 19 августа связываться по мессенджерам whatsp, telegram, viber.
Лицензия: 02240/446 МЮ РБ, 11.07.2022
Параметры объекта
- Тип объекта
Сфера услуг
- Площадь общая
1167 м²
- Этаж / этажность
1 / 1
- Год постройки
2023
- Материал стен
Кирпичный
- Высота потолков
3.5 м
- Ремонт
Хороший
- Отопление
Есть
- Электроснабжение
Есть
- Естественное освещение
Есть
- Вода
Есть
- Санузел
Есть
- Количество телефонов
1 телефон
- Парковка
Есть
- Принадлежность объекта
Частная
- НДС
НДС включен
- Юридический адрес
Да
- Номер договора
547/1 от 30.07.2025
Оснащение
Оживленное место
Рампа
Отдельный вход
Примечание
Продается отдельно стоящее здание площадью 1167 м2 со всеми коммуникациями.
Местоположение
- Область
- Населенный пункт
- Улица
- Номер дома
38
- Координаты
52.7172, 30.5602
