жилой дом в аг. Терешковичи (15 минут до ТЦ Кристалл)
62 300 р.
Тип
Участок
Общая
Жилая
Описание
Продается одноэтажный жилой дом в живописном, экологически чистом месте в аг. Терешковичи. Рядом лес, река Уть. Развитая инфраструктура. В непосредственной близости находятся: продуктовые и хозяйственные магазины, салон красоты, две школы, детский сад, Сельский исполком, аптеки, кафе, остановки общественного транспорта. Расстояние до г. Гомель (ТЦ «Кристалл») 15 км. – это 15 минут езды на общественном транспорте. Регулярное транспортное сообщение с городом Гомель.
Дом расположен на участке площадью 13,76 сотки. Участок ухоженный, ровный, прямоугольной формы, огорожен по периметру забором (есть железные ворота для заезда автомобиля на территорию участка. Имеются насаждения: фруктовые деревья (яблони, абрикос), кустарники (смородина, малина), виноград, можжевельник и постройки: навес 4х6м, 3 сарая (один с погребом), уборная. Так же за домом закреплен участок 25 соток для садоводства, который находится за основным участком.
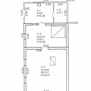
Сам дом бревенчатый (дуб), с внешней стороны обшит сайденгом. Фундамент крепкий, из обожжённого красного кирпича с бетонной отмосткой. Крыша – шифер. Общая площадь дома 51 кв.м., жилая -26,7 кв.м., кухня – 11,2 кв.м. Высота потолка 2,63 м. Все коммуникации (свет, вода, газ) центральные заведены в дом, канализация местная (выкопана яма, куплено кольцо, сделана проектная документация). Выкопана скважина. Электрическая насосная станция для скважины в доме, утеплена, находится под полом, что позволяет использовать воду круглогодично. В доме имеется действующая русская печь, в которой можно готовить еду и использовать ее по назначению и кирпичный погреб.
В 2013 года произведен ремонт в доме: установлены окна ПВХ, новая металлическая входная дверь, поклеены обои на стенах, потолок выложен потолочной плиткой. В доме установлен двухконтурный газовый котел (на гарантии), который обеспечивает нагрев горячей воды и регулирует температуру в доме в любое время года, газовая плита, умывальник. Так же установлены счетчики на воду, газ, свет.
Асфальтированный подъезд к дому. Широкий проезд. Хорошие, дружелюбные соседи.
Дом можно использовать как для круглогодичного проживания, и как дачу.
Договор на оказание риэлтерских услуг № 161/1 от 25.06.2024 года, ООО "Гид по недвижимости", УНП 491323159, г. Гомель, ул. Крестьянская, 32-2, Лицензия Министерства юстиции Республики Беларусь на осуществление риэлтерской деятельности №02240/310 от 10.06.2016 – риэлтерские услуги.
Расчет в белорусских рублях, работаем с банковскими кредитами, консультации и помощь в выборе банка (только актуальная информация).
Параметры объекта
- Тип объекта
Дом
- Площадь участка
13.76 соток
- Площадь общая
51 м²
- Площадь жилая
26.7 м²
- Площадь кухни
11.2 м²
- Процент готовности
100
- Материал стен
Бревенчатый
- Материал крыши
Шифер
- Отопление
На газу
- Газ
Магистральный
- Канализация
Местная
- Электроснабжение
Есть
- Вода
Центральный водопровод
- Статус земли
Частная собственность
- Условия продажи
Чистая продажа
- Номер договора
161/1 от 24.06.2024
Инфраструктура
Хозпостройки
Водоем
Примечание
Местоположение
- Область
- Район
- Населенный пункт
- Улица
- Сельсовет
Терешковичский с/с
- Координаты
52.253867, 30.947186
