Аренда торгового помещения в Торговом центре
20 р./м²
Тип
Площадь
Этаж
Описание
Аренда торгового помещения в Торговом центре
Адрес: Гомельская обл., г. Гомель, ул. Советская, 134Б
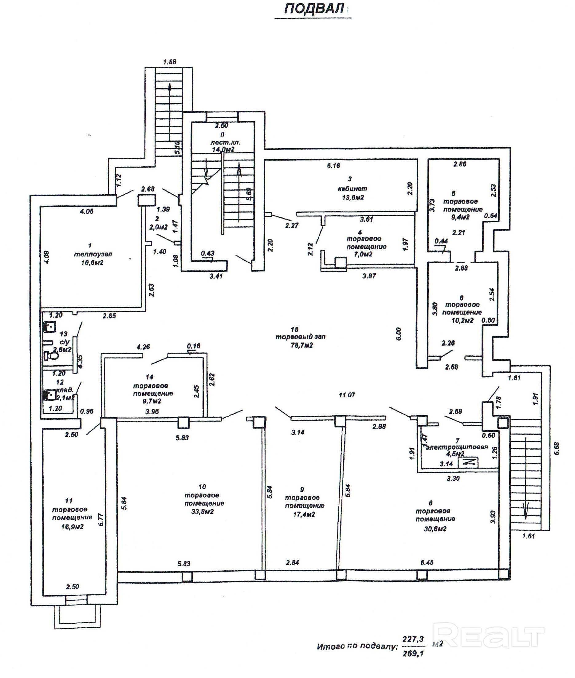
Площадь: 20 - 269,1 м2
Аренда всего этажа - 269,1 м2 (подвал)
Кабинетная нарезка, торговые помещения, наличие водоснабжения и канализации, отдельный вход.
Преимущества:
• Парковка
• Жилая застройка
• Вакантность аренды
• Пешеходный трафик
• Все коммуникации
• Остановки о/т
Арендатор не оплачивает услуги риэлтерской организации!
Ваш агент – Гончаров Владислав
+375(44) 7-800-863, +375(29) 7-800-863
Короткий номер (МТС, А1, Life): 7-800
Больше предложений на САЙТЕ Silvan7800.by
Присоединяйтесь к нам в соцсетях:
Instagram
Facebook
VK
OK
YouTube
Договор № 114/3а от 19.12.2025 по 18.12.2027
ООО «Сильван-Инвест», УНП 192927433, лицензия №02240/383, Министерство юстиции РБ, 24.09.2019.
Параметры объекта
- Тип объекта
Торговое помещение
- Площадь общая
20 - 269.10 м²
- Этаж / этажность
-1 / 3
- Год постройки
2009
- Отопление
Есть
- Электроснабжение
Есть
- Вода
Есть
- Санузел
Есть
- Принадлежность объекта
Частная
- НДС
НДС нет (0%)
- Расположение
В торговом центре
- Номер договора
114/3а от 18.12.2025
ООО " Сильван-Инвест"
Контактное лицо
Примечание
Местоположение
- Область
- Район
- Населенный пункт
- Улица
- Номер дома
134/Б
- Район города
- Координаты
52.4529, 30.993
