Кафе в г. Новополоцк в ТЦ Василевцы
от 15 р./м²
Тип
Площадь
Этаж
Описание
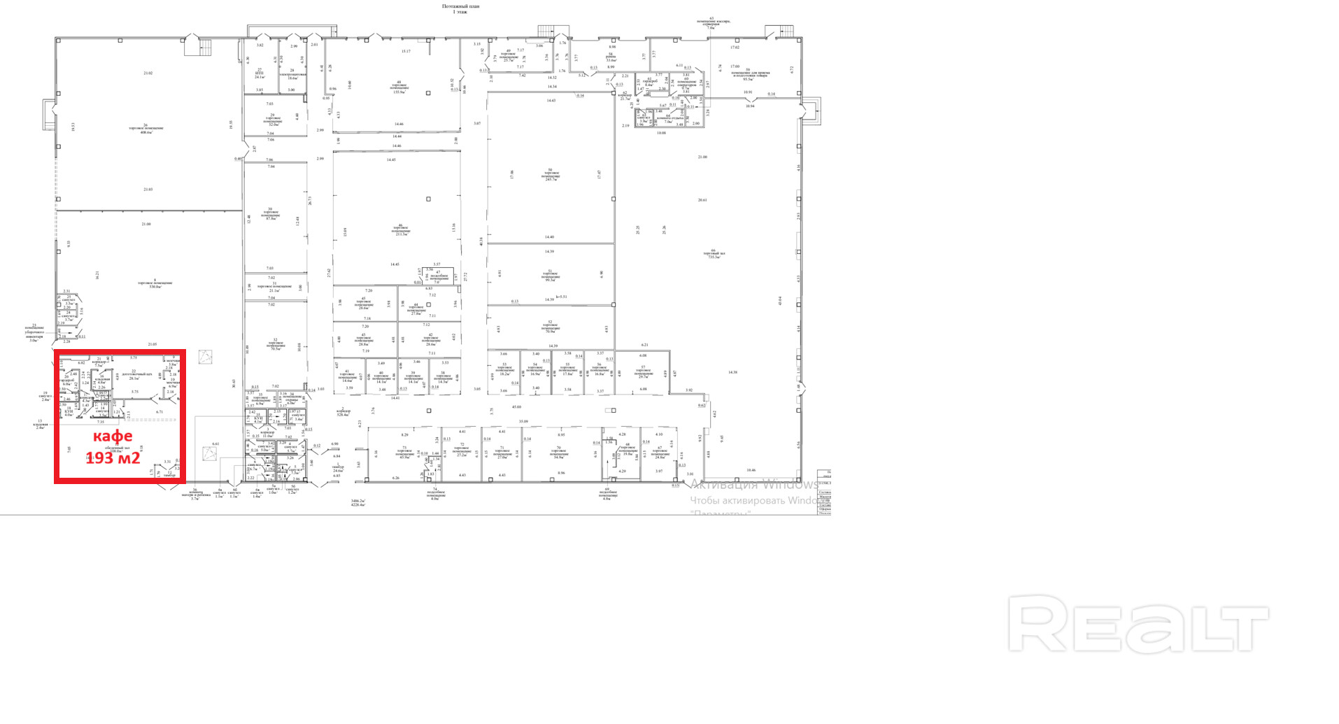
Сдается в аренду помещение под кафе площадью 193.1 м2
Общая площадь торгового центра 4 122 м2
Технические характеристики помещения:
- Отдельный вход;
- Отделка пола – плитка ГРЭС;
- Стены – сэндвич панели, ГКЛ окрашенный, плитка;
- Окна – витражное остекление обеденного зала;
- Состав помещений – обеденный зал на 48 посетителей, зона приготовления, гардероб, сан. узлы для сотрудников и посетителей, моечная столовой посуды, кладовые, комната уборочного инвентаря;
- Инженерное обеспечение – выделенная эл. мощность 81 кВт, центральные сети водоснабжения, канализации, отопления, приточновытяжная система вентиляции, вытяжные системы от технологического оборудования, системы кондиционирования, пожарной сигнализации.
В торговом центре расположены более 30 павильонов с различными видами товаров и услуг: «Детский мир», «Три цены», «Белита», «Брестские», мебель «Savlukov», детские игрушки, мужская одежда, одежда сток, двери, строительные материалы, парфюмерия, цветы, кофе, сухофрукты, аптека и др.
8-ой микрорайон г.Новополоцка — это активно развивающийся жилой массив с удобным доступом к основным транспортным артериям города и высокой концентрацией жилых домов, что обеспечивает стабильный пешеходный и автомобильный трафик.
Преимущества локации:
- Густонаселённый жилой массив
Район активно застраивается и уже сформировал устойчивый поток жителей, что обеспечивает постоянный спрос на торговые и сервисные услуги. - Развитая инфраструктура вокруг
В шаговой доступности находятся продуктовые магазины, аптеки, банки, рынок, кафе, гостиницы и торговые центры. Это делает локацию удобной для жителей и привлекательной для бизнеса. - Транспортная доступность
Рядом остановки общественного транспорта, что обеспечивает лёгкий доступ для клиентов из разных районов города. - Высокий пешеходный и автомобильный трафик
Локация находится на пересечении жилых кварталов и рядом с ключевыми объектами городской инфраструктуры, что гарантирует поток посетителей. - Парковочные зоны
Наличие парковок рядом повышает удобство для покупателей и арендаторов.
Параметры объекта
- Тип объекта
Кафе
- Площадь общая
193 м²
- Этаж / этажность
1 / 1
- Раздельных помещений
1
- Ремонт
Хороший
- Отопление
Есть
- Электроснабжение
Есть
- Электрическая мощность
81 кВт
- Естественное освещение
Есть
- Парковка
Есть
- Принадлежность объекта
Частная
- НДС
НДС включен
- Расположение
В торговом центре
- Новостройка
Да
Арендодатель
Сергей
Контактное лицо
Примечание
Местоположение
- Область
- Район
- Населенный пункт
- Улица
- Номер дома
15
- Координаты
55.5107, 28.6952
