Купить офис, г. Минск, ул. Богдановича, 118
465 069 р.
4 228 р.≈ 1 500 $ за м²
Тип
Площадь
Этаж
Описание
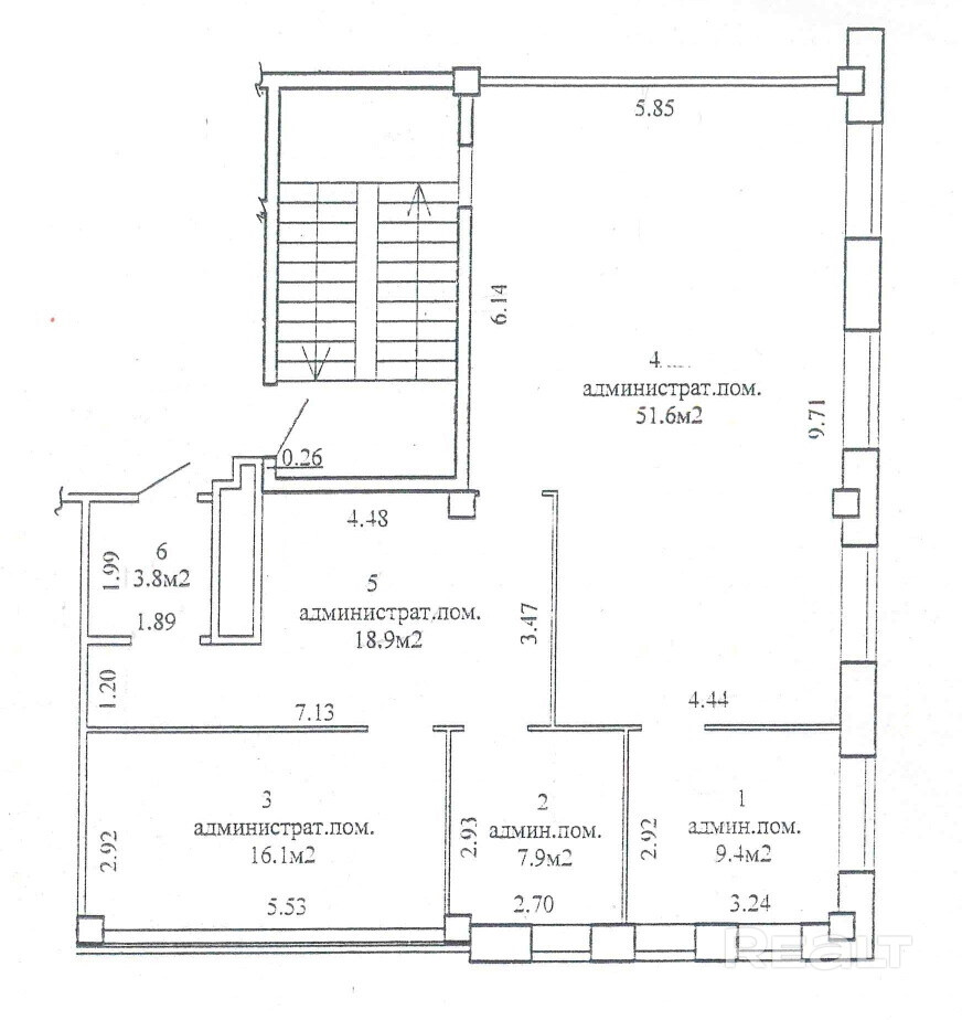
Ваш идеальный офис в ТЦ «Некрасовский» — Готовый бизнес-хаб 107.7 м2!
Ищете пространство, которое будет работать на ваш имидж и комфорт? Предлагаем уникальный офис в одном из самых оживленных районов Минска (ул. Богдановича, 118).
Почему это предложение — лучшее на рынке:
- Формат «Заезжай и работай»: Офис площадью 107.7 м2 с современным ремонтом. В стоимость уже включена качественная мебель и необходимая техника — вам не нужно тратить время и деньги на обустройство.
- Уникальный доступ и приватность:
2 отдельных входа: один с оживленной улицы (идеально для клиентов), второй — прямо из торгового центра.
Доступ 24/7: ваш бизнес не зависит от графика работы ТЦ.
- Максимальная видимость: Возможность установки вашей вывески на фасаде здания. Огромный пешеходный и автомобильный трафик обеспечит вам бесплатную наружную рекламу.
- Локация с огромным потенциалом:
Отличное транспортное сообщение.
Прямо рядом строится новая станция метро, что гарантирует стремительный рост стоимости объекта в ближайшем будущем.
- Комфорт для сотрудников и гостей:
Всегда есть свободные парковочные места прямо у входа в торговый центр.
Развитая инфраструктура внутри ТЦ: кафе, магазины и услуги в шаговой доступности.
Это пространство идеально подойдет под представительство компании, современный IT-офис, медицинский центр или образовательный проект.
Инвестируйте в локацию, которая растет в цене каждый день!
Параметры объекта
- Тип объекта
Офис
- Площадь общая
107.70 м²
- Этаж / этажность
3 / 3
- Год постройки
2005
- Ремонт
Хороший
- Отопление
Есть
- Электроснабжение
Есть
- Естественное освещение
Есть
- Оборудование
Есть
- Принадлежность объекта
Частная
- Расположение
В торговом центре
Оснащение
Мебель
Продавец
Рекламный агент
Контактное лицо
Примечание
Местоположение
- Область
- Населенный пункт
- Улица
- Номер дома
118
- Район города
- Микрорайон
- Координаты
53.9356, 27.5838
