Продается 2 комнатная в центре столицы
448 360 р.
7 798 р.≈ 2 781 $ за м²
- г. Минскул. Ленинградская, 1
- Площадь Ленина
- На карте
Общая
Жилая
Кухня
Этаж
Описание
Продается элитная 2-комнатная квартира в сердце Минска — ул. Ленинградская, 1.
Часть легендарного комплекса «Ворота Минска»: кирпичный дом после капремонта, 4 этаж, потолки 3,07 м, панорамный вид на исторический центр, просторный балкон и согласованная перепланировка.
Ключевые плюсы
• Квартира с ремонтом и уже приносит постоянный, стабильный доход.
Стеклопакеты, металлическая дверь, железобетонные перекрытия — идеальная тепло- и звукоизоляция.
• Инфраструктура мечты:
1 минута до метро «Площадь Ленина», ж/д и автовокзала. Рядом — ТЦ «Столица» и «Galileo», популярная ул. Карла Маркса с топ-ресторанными, кофейни, музеи, банки, аптеки.
Благоустроенный двор с парковкой и зарядками для электрокаров. Готовый бизнес под аренду или роскошное проживание.
Чистая продажа, ключи в день сделки.
Параметры объекта
- Количество комнат
2
- Раздельных комнат
2
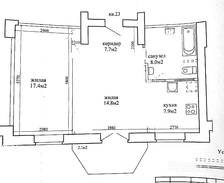
- Площадь общая
57.5 м²
- Площадь жилая
32.2 м²
- Площадь кухни
8 м²
- Год постройки
1952
- Этаж / этажность
4 / 4
- Тип дома
Кирпичный
- Планировка
Сталинка
- Балкон
Балкон
- Ремонт
Евроремонт
- Высота потолков
3 м
- Санузел
Совмещенный
- Возможен торг
Да
- Собственность
Частная
- Условия продажи
Чистая продажа
- Номер договора
64/1 от 18.01.2026
Дмитрий Горелик
Агент по недвижимости
Примечание
Местоположение
- Область
- Населенный пункт
- Улица
- Номер дома
1
- Район города
- Микрорайон
- Координаты
53.8939, 27.5505
