Помещение 70,2 м² у метро «Грушевка»: прямая аренда в готовом ЖК «Квартал на Грушевке»
от 4 620 р.
от 66 р.≈ от 24 $ за м²
- г. Минскпросп. Дзержинского, 30
- Грушевка
- 1 минута
- На карте
Тип
Площадь
Этаж
Описание
Застройщик жилого комплекса «Квартал на Грушевке» приглашает арендовать современное коммерческое помещение площадью 70,2 м2 на 1 м этаже готового и полностью заселённого дома вдоль оживлённого проспекта Дзержинского. Дом уже сдан — бизнес можно начинать прямо сейчас!
Вы получаете не просто квадратные метры, а выгодную локацию с высоким трафиком и всеми условиями для быстрого старта:
- В двух шагах от метро. Всего минута пешком до станции метро «Грушевка» и остановок общественного транспорта — клиенты найдут вас без труда.
- Постоянный поток посетителей. Высокий пешеходный трафик вдоль проспекта Дзержинского и уже заселённый жилой комплекс обеспечат стабильный приток клиентов.
- Яркий визуальный акцент. Витражное остекление с улицы делает ваше заведение заметным днём и вечером-отличная реклама без дополнительных затрат. Благодаря витражному остеклению в помещении много естественного света, что создаёт комфортную атмосферу и снижает затраты на освещение.
- Удобство для клиентов. Отдельный вход и место для вывески подчеркнут статус вашего бизнеса и обеспечат комфорт посетителям.
- Свобода творчества. Свободная планировка и потолки высотой 4 м позволяют реализовывать любой дизайн‑проект — от минималистичного офиса до стильного салона красоты.
- Надёжность и прозрачность. Прямой договор с застройщиком исключает посредников и гарантирует стабильность условий.
Основные характеристики:
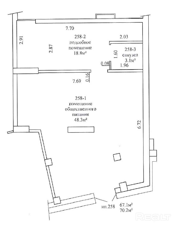
- площадь: 70,2 м2;
- этаж: 1/20;
- высота потолков: 4 м;
- планировка: свободная;
- отделка: без отделки (возможность сделать ремонт под свои задачи);
- тип: торговое, торгово‑административное, бытового обслуживания или иное.
Инженерные коммуникации:
- отопление — комфортно в любое время года;
- электроснабжение (20 кВт) — достаточно для большинства видов бизнеса;
- водоснабжение;
- санузел в помещении;
- естественное освещение благодаря витражному остеклению.
Особые условия для первых арендаторов:
- Льготная ставка на первые 6 месяцев — от 66 руб.м2. Начните бизнес с минимальными затратами!
- Арендные каникулы от 2-ух до 4 месяцев на время ремонта —обустраивайте пространство без лишних платежей.
Представьте: уже через несколько месяцев здесь будет ваш бизнес — узнаваемый, успешный, приносящий стабильный доход. Всё, что нужно для старта, уже есть: готовый дом, заселённые квартиры, трафик, инфраструктура, коммуникации и выгодные условия аренды.
Запишитесь на просмотр прямо сейчас — забронируйте помещение раньше конкурентов!
- адрес офиса продаж: пр. Дзержинского, 34, помещ. 269, 1 этаж;
Будем рады ответить на все вопросы, показать помещение и помочь подобрать оптимальные условия аренды под ваш бизнес‑план. Ваш успех начинается здесь!
Параметры объекта
- Тип объекта
Торговое помещение
- Площадь общая
70.20 м²
- Этаж / этажность
1 / 20
- Год постройки
2025
- Материал стен
Монолитный
- Высота потолков
4 м
- Ремонт
Без отделки
- Отопление
Есть
- Электроснабжение
Есть
- Электрическая мощность
20 кВт
- Естественное освещение
Есть
- Вода
Есть
- Санузел
Есть
- Принадлежность объекта
Частная
- НДС
НДС включен
- Расположение
В жилом доме
- Юридический адрес
Да
- Новостройка
Да
Оснащение
Оживленное место
Компьютерная сеть
Интернет
Отдельный вход
Готовый бизнес
Арендодатель
ЖК "Квартал на Грушевке" Отдел продаж
Контактное лицо
Примечание
Местоположение
- Область
- Населенный пункт
- Улица
- Номер дома
30
- Район города
- Микрорайон
- Жилой комплекс
ЖК «Квартал на Грушевке»
- Координаты
53.8865, 27.5126
