Снять торговое помещение, г. Минск, ул. Игоря Лученка, 29
42 р./м²
- г. Минскул. Игоря Лученка, 29
- Аэродромная (2024)
- 5 минут
- На карте
Тип
Площадь
Этаж
Описание
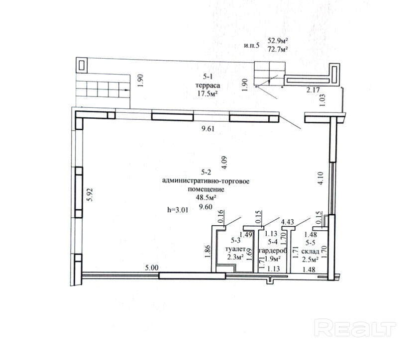
Сдаётся в аренду административно-торговое помещение по ул. Игоря Лученка, д.29 в квартале «Южная Америка» в Минск-Мире.
Помещение общей площадью 72.7 кв.м с отдельным входом расположено на 1 этаже. Есть терраса 17.5 кв.м. огорожена, два входа, один - с пандусом.
В помещении сделан ремонт, на полу керамогранит, стены и потолок окрашены, в санузле современная качественная сантехника. Панорамные окна, радиаторы с терморегуляторами, потолки 3,1 м. Установлена пожарная сигнализация с ежемесячным обслуживанием, кондиционер, приточно-вытяжная вентиляция, электрическая мощность 10 кВт.
В пешей доступности станция метро «Аэродромная», остановки общественного транспорта, удобный выезд в центр города и на МКАД.
Район заселен, хороший пешеходный и автомобильный трафик. Многочисленные машиноместа возле дома. Рядом новый ТЦ «Авиа Молл». Помещение можно использовать под различные сферы бизнеса и стрит-ритейла.
Звоните! Организуем просмотр в удобное время и ответим на ваши вопросы.
Параметры объекта
- Тип объекта
Торговое помещение
- Площадь общая
72.70 м²
- Этаж / этажность
1 / 25
- Материал стен
Монолитный
- Ремонт
Хороший
- Отопление
Есть
- Электроснабжение
Есть
- Естественное освещение
Есть
- Вода
Горячая
- Санузел
Есть
- Парковка
Есть
- Принадлежность объекта
Частная
- Расположение
В жилом доме
- Новостройка
Да
- Номер договора
15/3а от 01.04.2026
Оснащение
Видеонаблюдение
Оживленное место
Интернет
Отдельный вход
Примечание
Местоположение
- Область
- Населенный пункт
- Улица
- Номер дома
29
- Район города
- Микрорайон
- Координаты
53.8629, 27.5545
