Снять торговое помещение, г. Минск, просп. Дзержинского, 94
79 - 80 р./м²
Аренда
Следить за ценой
- г. Минскпросп. Дзержинского, 94
- Петровщина
- На карте
Торговое помещение
Тип
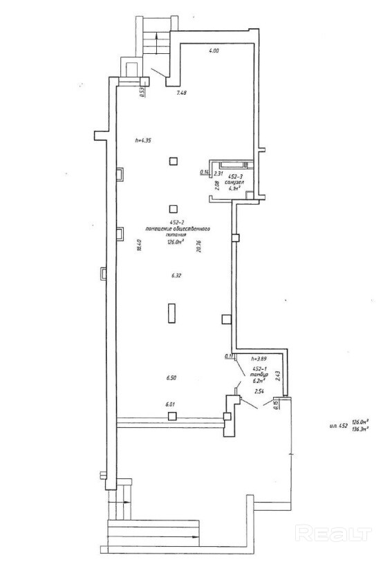
136.30 м²
Площадь
26.03.2026ID 4076786
Описание
Сдаётся в аренду административно-торговое помещение в ЖК «Петровщина». Первый этаж жилого дома, отдельный вход.
Арендная ставка 79,60 руб./кв.м. с НДС.
Помещение с отделкой. Два отдельных входа.
Дом находится в развитом, оживленном районе. Большое количество объектов стритритейла, магазинов, салонов и пр. В пешей доступности станции метро, остановки общественного транспорта.
Рядом с домом открытый паркинг.
В помещении проведена система вентиляции, пожаротушения, свет, телефонная линия, оптоволокно. Есть возможность размещения вывески на фасаде здания.
Параметры объекта
- Тип объекта
Торговое помещение
- Площадь общая
136.30 м²
- Материал стен
Блочный
- Ремонт
Хороший
- Отопление
Есть
- Электроснабжение
Есть
- Естественное освещение
Есть
- Вода
Есть
- Санузел
Есть
- Парковка
Есть
- Принадлежность объекта
Частная
- НДС
НДС включен
- Расположение
В жилом доме
- Номер договора
24/3а от 03.07.2023
Оснащение
Оживленное место
Примечание
Сдаётся в аренду административно-торговое помещение в ЖК «Петровщина». Первый этаж жилого дома, отдельный вход. Арендная ставка 79,60 руб./кв.м. с НДС.
Местоположение
- Область
- Населенный пункт
- Улица
- Номер дома
94
- Район города
- Микрорайон
- Координаты
53.8655, 27.4856
