АРЕНДА торгового помещения!
от 3 000 р.
Тип
Площадь
Этаж
Описание
АРЕНДА торгового помещения!
Помещение находится на пешем и транспортном потоке в самом центре микрорайона Лошица.
Помещение сдается с готовым ремонтом!
Сдает юрлицо – ООО. НДС-0.
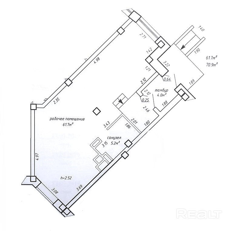
► Адрес: г. Минск, Игуменский тракт, 14
► Общая площадь — 70,9 кв.м
► Этаж — 1 из 7
► Отдельный вход
► Вход со стороны Игуменского тракта
► Доступ 24/7
► Высота потолка – 2,52м
► Пожарная сигнализация
► Собственный санузел
► Водоснабжение — горячая и холодная вода
► Отопление
► Отдельная вентиляция
► Скоростной интернет
► Удобные подъездные пути
► Большая парковка
Арендатор не платит комиссию агентству!
Подробнее по телефону.
ООО «ЭТАЖИ юнайтед»
УНП: 193673318
Договор 7/1а от 09.02.2026
Лицензия на оказание риэлтерских услуг №02240/460 МЮ РБ от 03.04.2023
Параметры объекта
- Тип объекта
Торговое помещение
- Площадь общая
70.90 м²
- Этаж / этажность
1 / 7
- Раздельных помещений
1
- Материал стен
Блочный
- Высота потолков
2.5 м
- Ремонт
Хороший
- Отопление
Есть
- Электроснабжение
Есть
- Естественное освещение
Есть
- Вода
Есть
- Санузел
Есть
- Парковка
Есть
- Расположение
В жилом доме
- Номер договора
7/1а от 08.02.2026
Оснащение
Отдельный вход
Интернет
Специалист по недвижимости
Контактное лицо
Примечание
Местоположение
- Область
- Населенный пункт
- Улица
- Номер дома
14
- Район города
- Микрорайон
- Координаты
53.8467, 27.5674
