Аренда помещения 111.2 м2, пр-т Дзержинского,11
4 556 р.
48 р.≈ 17 $ за м²
Аренда
Следить за ценой
Торговое помещение
Тип
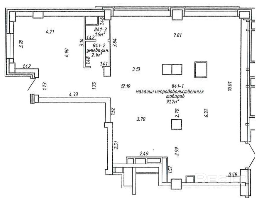
95.40 м²
Площадь
1 из 15
Этаж
10.04.2026ID 3900315
Описание
Аренда помещения 111.2 м2, пр-т Дзержинского,11
Помещение расположено на первом этаже жилого дома с отдельным входом, что обеспечивает круглосуточный доступ. Помещение с отделкой, подойдёт под торговлю, общественное питание, сферу услуг, а также иные бизнес-проекты.
Жилой дом расположен в густонаселённом районе с плотной застройкой. Все коммерческие помещения в жилом доме заполнены арендаторами, магазины, точки общепита, бьюти услуги.
Не упустите свой шанс занять свою нишу в этой локации!
Параметры объекта
- Тип объекта
Торговое помещение
- Площадь общая
95.40 м²
- Этаж / этажность
1 / 15
- Раздельных помещений
1
- Материал стен
Монолитный
- Высота потолков
3 м
- Ремонт
Хороший
- Отопление
Есть
- Электроснабжение
Есть
- Естественное освещение
Есть
- Вода
Есть
- Санузел
Есть
- Парковка
Есть
- Принадлежность объекта
Частная
- НДС
НДС включен
- Расположение
В жилом доме
- Номер договора
18/1а от 26.12.2024
Оснащение
Видеонаблюдение
Сигнализация
Охрана
Оживленное место
Отдельный вход
Компьютерная сеть
Примечание
Аренда помещения 95,4 м2, пр-т Дзержинского,11. Помещение расположено на первом этаже жилого дома с отдельным входом, что обеспечивает круглосуточный доступ. Помещение с отделкой, подойдёт под торговлю, общественное питание, сферу услуг, а также иные бизнес-проекты. Не упустите свой шанс занять свою нишу в этой локации!
Местоположение
- Область
- Населенный пункт
- Улица
- Номер дома
11
- Район города
- Микрорайон
- Координаты
53.8882, 27.5207


