Аренда коммерческого помещения 111.7 м² напротив ТЦ «Dana Mall»
42 р./м²
Тип
Площадь
Этаж
Описание
Аренда коммерческого помещения 111.7 м2 напротив ТЦ «Dana Mall»
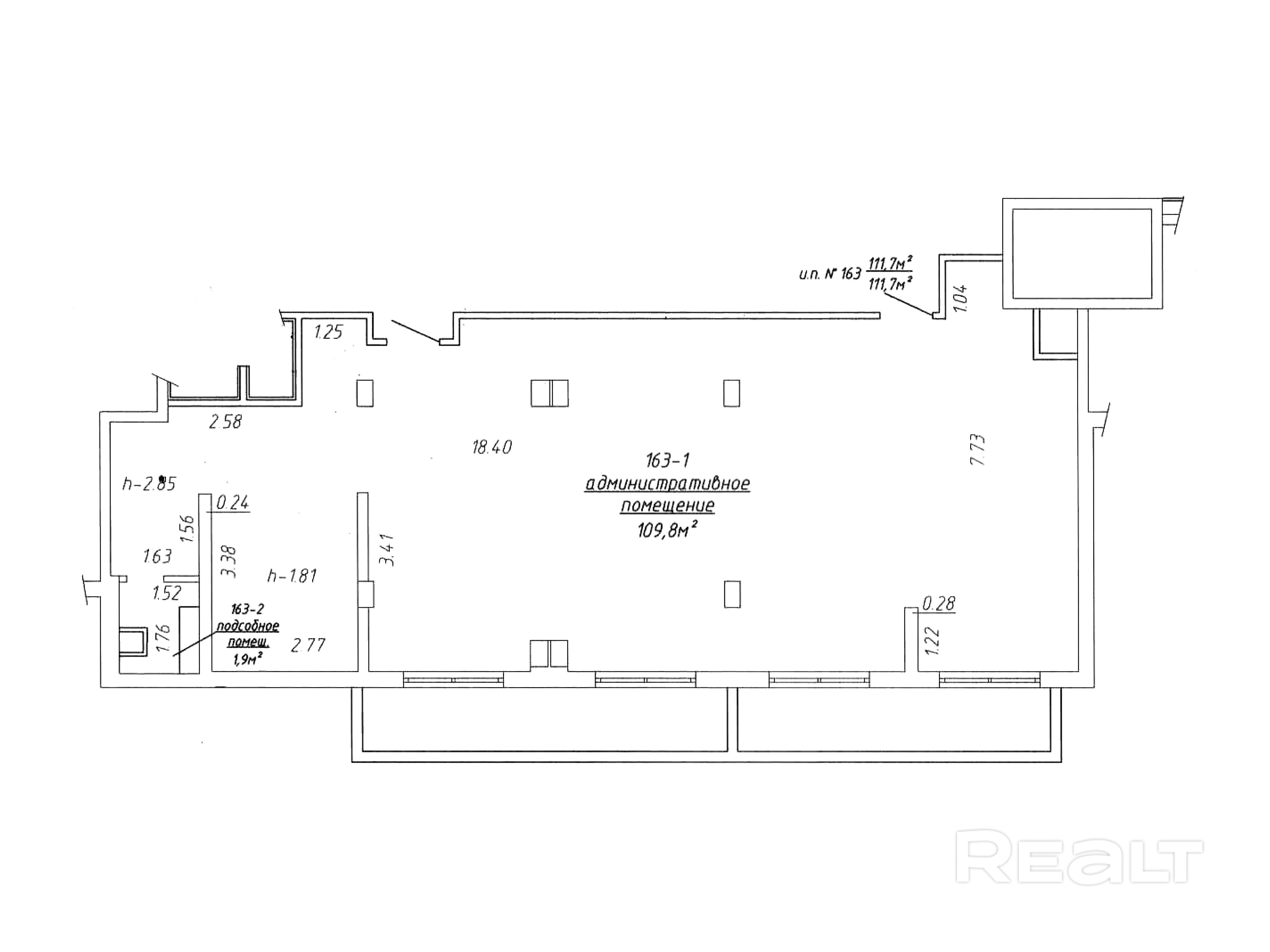
Помещение на первом этаже. Широкий зал с хорошим естественным освещением, собственный санузел, переговорная, кухонная зона и 2 входа. Объект полностью готов к переезду и работе.
Преимущества для вашего бизнеса:
- Чистовой ремонт с высотой потолков 2,7м;
- Разведены электрические и слаботочные сети;
- Гибкий график: Круглосуточный доступ 24/7.
Парковка:
Бесплатная плоскостная парковка вдоль здания. Есть возможность аренды мест в подземном паркинге ТЦ через дорогу.
Транспортное сообщение:
Станция метро «Восток» и остановки общественного транспорта в 3 минутах ходьбы.
Локация и трафик:
Оживленный район с развитой инфраструктурой, высоким пешеходным и автомобильным трафиком. Вашими клиентами могут стать жители района и посетители торговых центров «Dana Mall» и «Гандлёвы Дом».
Result Estate — ваш надёжный партнёр на рынке недвижимости.
20 лет опыта наших агентов по недвижимости — это ваш ключ к идеальной сделке: глубокое знание рынка, эксклюзивные предложения, юридическая безопасность и индивидуальный подход. Мы экономим ваше время, деньги и нервы, помогая купить, продать недвижимость быстро, выгодно и с уверенностью в результате!
Все актуальные предложения в одном месте — смотрите на нашем сайте.
Опишите свои пожелания — и мы оперативно подберем для вас лучшие варианты!
ООО «Результативная недвижимость», лицензия выдана Минюстом 26.09.2023 № 02240470, УНП 193703497
Связываясь с нами по данному объекту, Вы даете свое согласие на сбор и обработку персональных данных автоматически.
Параметры объекта
- Тип объекта
Сфера услуг
- Площадь общая
111.70 м²
- Этаж / этажность
1 / 11
- Ремонт
Хороший
- Отопление
Есть
- Электроснабжение
Есть
- Естественное освещение
Есть
- Вода
Есть
- Санузел
Есть
- Парковка
Есть
- Принадлежность объекта
Частная
- НДС
НДС нет (0%)
- Расположение
В жилом доме
- Номер договора
65/1a от 01.10.2025
Сергей Костюкевич
Агент по недвижимости
Примечание
Местоположение
- Область
- Населенный пункт
- Улица
- Номер дома
24
- Район города
- Микрорайон
- Координаты
53.9335, 27.6551
