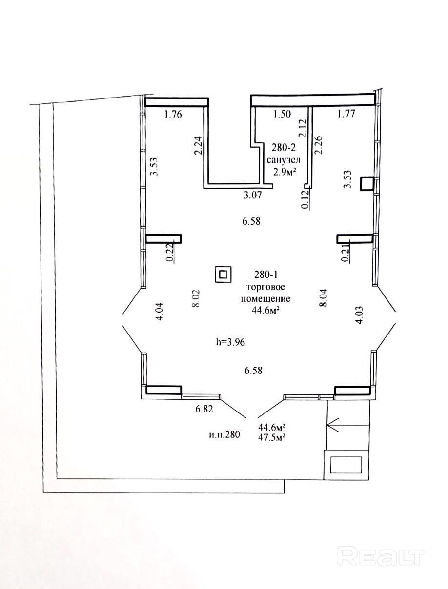
Сдаётся в аренду торговое помещение 47,5 м², ул.Савицкого, 35
2 410 р.
51 р.≈ 18 $ за м²
- г. Минскул. Савицкого, 35
- Аэродромная (2024)
- На карте
Тип
Площадь
Этаж
Описание
Торговое помещение 47,5 кв.м. по адресу Михаила Савицкого 35
Аренда многофункционального (торговое, шоурум, услуги, офис) помещения общей площадью 47,5 кв.м. по улице Михаила Савицкого 35.
-Собственник самостоятельно делает ремонт.
-Помещение расположено на 1-ом этаже с отдельным входом и доступом 24/7.
-Хорошие подъездные пути и возможность разгрузки.
-Развитая инфраструктура: расположено в месте высокого трафика .
-Собственный санузел.
-Возможность установки рекламной конструкции на фасаде здания.
Больше объявлений тут: www.instagram.com/garant.arenda
Напишите нам в удобный для Вас мессенджер:
Viber | Telegram | WhatsApp
Ответим на Ваши вопросы, предоставим всю необходимую дополнительную информацию.
ООО «Артель Недвижимость»
УНП 193820882
Лицензия Министерства Юстиции №48250000081913 06.03.2025 г.
Договор №227/2а от 13.03.26
Параметры объекта
- Тип объекта
Офис
- Площадь общая
47.50 м²
- Этаж / этажность
1 / 25
- Год постройки
2024
- Класс
B
- Раздельных помещений
1
- Материал стен
Монолитный
- Высота потолков
3.5 м
- Ремонт
Без отделки
- Отопление
Есть
- Электроснабжение
Есть
- Электрическая мощность
8 кВт
- Естественное освещение
Есть
- Санузел
Есть
- Парковка
Есть
- Принадлежность объекта
Частная
- НДС
НДС нет (0%)
- Расположение
В жилом доме
- Юридический адрес
Да
- Новостройка
Да
- Номер договора
227/2а от 12.03.2026
Оснащение
Видеонаблюдение
Оживленное место
Отдельный вход
Недвижимость
Контактное лицо
Примечание
Местоположение
- Область
- Населенный пункт
- Улица
- Номер дома
35
- Район города
- Микрорайон
- Координаты
53.8606, 27.5537
