Продаётся дом в центре Бобруйска на ул. Пригородная, 24.
479 162 р.
Тип
Участок
Общая
Жилая
Описание
Продаётся дом в центре Бобруйска с баней, гаражом и хозпостройками в идеальном состоянии.
г. Бобруйск, ул. Пригородная, 24
Участок 10 соток с садом, баней, летней кухней и хозблоком.
Трехэтажный дом построен по индивидуальному архитектурному дизайн-проекту и отличается продуманной планировкой и высокими потолками.
Готовность 100%. В доме продумано все до мелочей, а для реализации использованы только качественные и дорогие материалы:
- Фундамент из ФБС.
- Стены из кирпича и газосиликатных блоков с утеплением.
- Мягкая кровля.
- Качественные энергосберегающие стеклопакеты.
- Железная входная дверь, автоматические въездные ворота.
- Современная топочная, газовый котёл, радиаторы, тёплые полы на кухне и в фойе.
- Вода и канализация центральные.
- Полы – плитка и паркет.
- Гостиная с потолками высотой до 7 метров.
- Бытовая техника ведущих мировых брендов (все остается).
- Стильная и дорогая мебель (все остается).
- На участке красивый, функциональный ландшафтный дизайн.
- Хозпостройка с летней кухней и баней.
- Обустроенный подвал с игровой и бильярдной комнатами.
- На мансардном 3-м этаже есть балкон с шикарным видом на весь город.
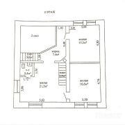
Дом состоит из просторной гостиной с камином, террасы, шести больших жилых комнат, кухни, гардеробной, двух санузлов, топочной, большой гостевой парковкой перед домом. В доме находятся все необходимые коммуникации, включая электричество, отопление, воду, канализацию и газ.
Развитая инфраструктура в шаговой доступности делает это место идеальным для проживания: супермаркеты, магазины, школа и детский сад, почта, банк, медучреждения и аптеки. Тихая улица рядом с центром города!
Обратитесь к нам для просмотра, чтобы лично оценить этот неповторимый дом. Поможем с кредитом.
Смотрите еще больше в нашем Telegram канале @kvadratnyjmetr
УП «Квадратный метр»
УНП: 190003285
Лицензия 02240/29_
от 17.02.2005, Министерство юстиции РБ
Договор 104/24 от 20.02.2026
Параметры объекта
- Тип объекта
Дом
- Площадь участка
10.99 соток
- Площадь общая
250.9 м²
- Площадь жилая
97 м²
- Площадь кухни
16.2 м²
- Уровней в доме
3
- Год постройки
2006
- Материал стен
Кирпичный
- Материал крыши
Черепица
- Отопление
На газу
- Газ
Есть
- Канализация
Центральная
- Электроснабжение
Есть
- Вода
Центральный водопровод
- Статус земли
Частная собственность
- Условия продажи
Чистая продажа
- Номер договора
104/24 от 19.02.2026
Руслан Глухов
Агент по недвижимости
Примечание
Местоположение
- Область
- Район
- Населенный пункт
- Улица
- Номер дома
24
- Координаты
53.144798, 29.208389


