Помещение г. Слоним, ул. Минский Тракт, 10
620 092 р.
Тип
Площадь
Этаж
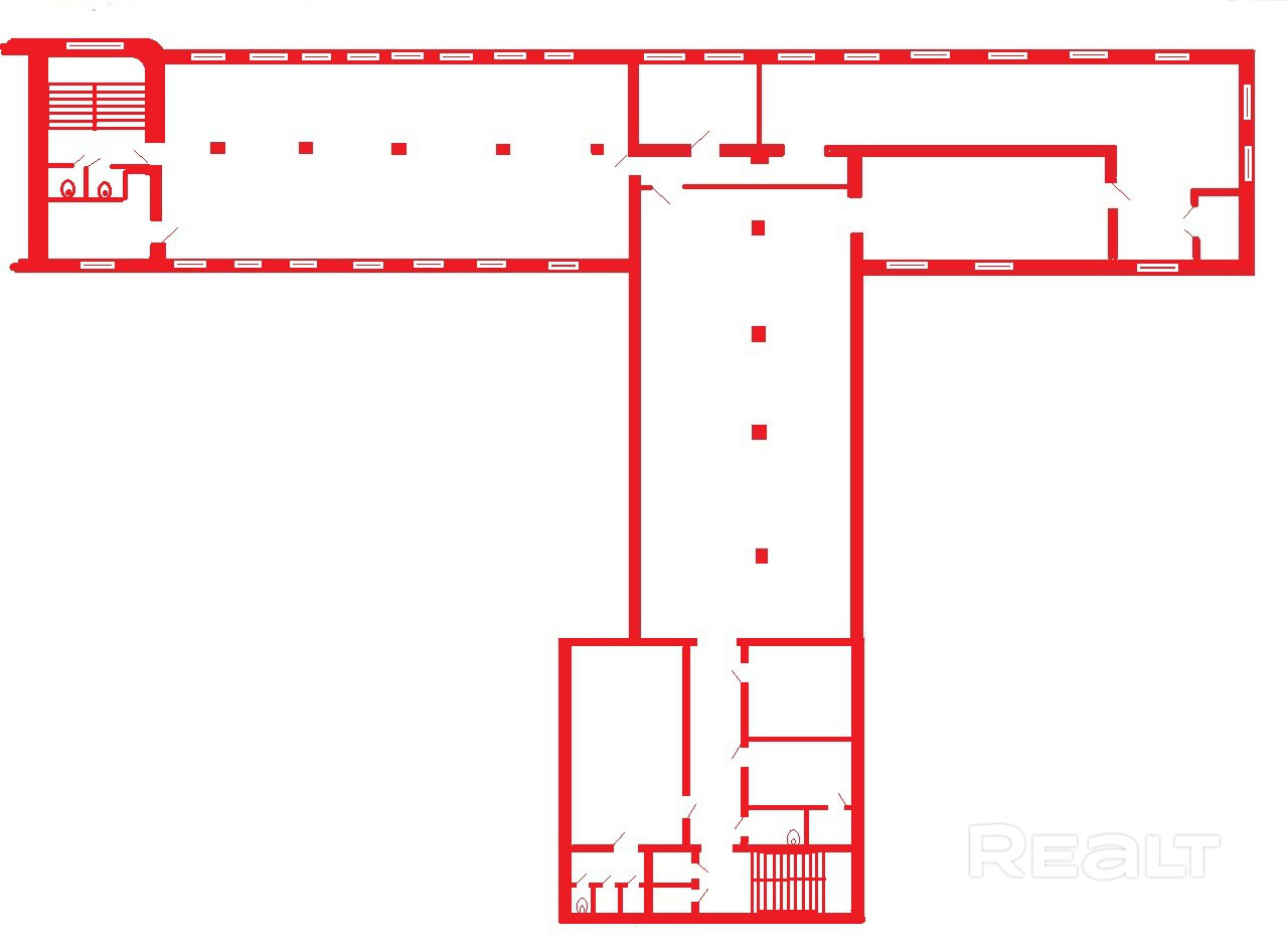
Описание
Продажа 2-го этажа помещения с отдельным входом в г. Слоним, ул. Минский Тракт, 10.
Технические характеристики:
- общая площадь 1100 м. кв.
- отдельный вход
- хорошее естественное освещение
-Высокие потолки ( h= 3,15 м.)
- коммуникации: электричество, отопление, канализация, водоснабжение.
- наличие с/узла.
Особенности помещения:
- Два зала площадью по 300 м. кв, остальная площадь с изолированными кабинетами.
- Возможность разделения на несколько зон (офисы, кабинеты, зоны для встреч и т. д)
- хорошие, асфальтированные подъездные пути к зданию.
- наличие парковочных мест для Вас и Ваших клиентов.
- огороженная и охраняемая территория.
Здание 1981 года постройки.
Помещение основательно отделано качественными материалами, отличное состояние напольной плитки и стен – всё в светлых тонах.
Готовность помещения = 100 %, от Вас только наполнение содержимым под направление своего бизнеса!
Развивайте свой бизнес в комфортном и удобном пространстве!
Готовы с Вами к переговорам для поиска оптимального решения, которое будет учитывать интересы обеих сторон.
Есть возможность арендовать помещение как полностью, так и частично (смотрите раздел «Аренда»)
Звоните прямо сейчас для организации просмотра!
Параметры объекта
- Тип объекта
Помещение
- Площадь общая
1100 м²
- Этаж / этажность
2 / 2
- Ремонт
Хороший
- Отопление
Есть
- Электроснабжение
Есть
- Естественное освещение
Есть
- Вода
Есть
- Санузел
Есть
- Парковка
Есть
- Номер договора
11/11 от 19.01.2026
Оснащение
Отдельный вход
Примечание
Местоположение
- Область
- Район
- Населенный пункт
- Улица
- Номер дома
10
- Координаты
53.0951, 25.3614
