1-комнатная квартира ул. Старомалыщинская д. 118
139 521 р.
3 100 р.≈ 1 100 $ за м²
Чистая продажа
Следить за ценой
45 м²
Общая
16.5 м²
Жилая
16 из 18
Этаж
27.03.2026ID 4009420
Описание
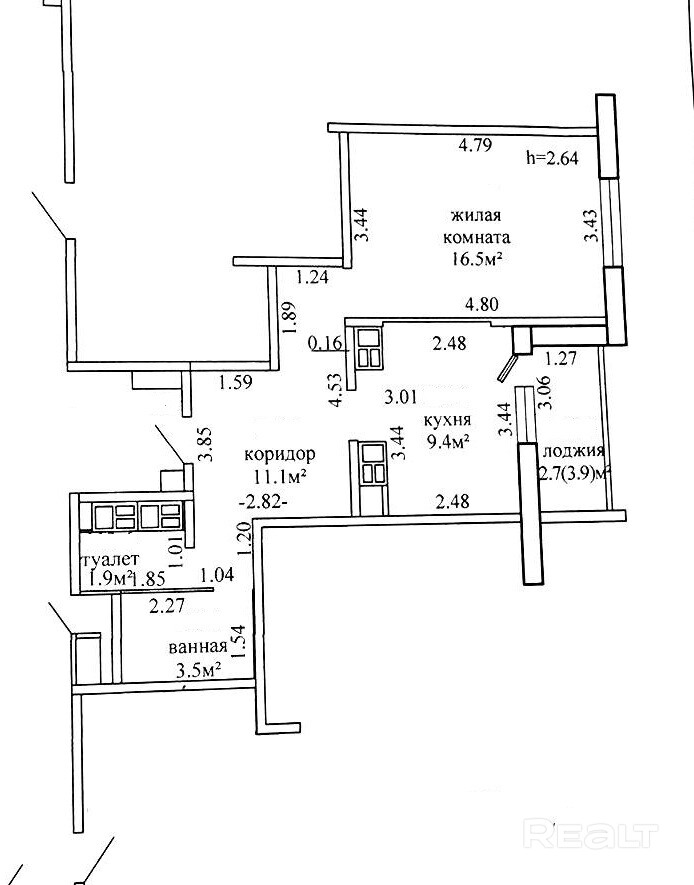
Продается новая 1-х комнатная квартира ул. Старомалыщинская дом 118 16 этаж /18 этажного жилого дома. Год постройки 2026. Площадь общая 45.01 , жилая 16.5, просторная кухня 9.4 м2. Одна лоджия 3.9 м2 застеклена .
Раздельный санузел. Замечательный вид из окон на рассвет.
Чистый аккуратный подъезд, видеонаблюдение по периметру дома.
В доме просторная лестничная клетка. Два грузопассажирских лифта .
У дома просторная авто парковка.
Возможна покупка в кредит!
Поможем продать вашу недвижимость для покупки этой!
За подробной информацией просьба обращаться по телефону и пишите Viber, Telegram.Возможен торг!
Параметры объекта
- Количество комнат
1
- Площадь общая
45 м²
- Площадь жилая
16.5 м²
- Год постройки
2026
- Этаж / этажность
16 / 18
- Балкон
Лоджия
- Собственность
Частная
- Условия продажи
Чистая продажа
- Номер договора
29/17 от 13.01.2026
Примечание
Продается новая 1-х комнатная квартира ул. Старомалыщинская дом 118 16 этаж /18 этажного жилого дома. Год постройки 2026. Площадь общая 45.01 , жилая 16.5, просторная кухня 9.4 м2. Одна лоджия 3.9 м2 застеклена .
Местоположение
- Область
- Район
- Населенный пункт
- Улица
- Номер дома
118
- Район города
- Координаты
53.7231, 23.8907
