Купить 2-комнатную квартиру, г. Островец, ул. Октябрьская, 11/В
173 664 р.
2 880 р.≈ 1 040 $ за м²
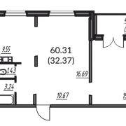
Общая
Жилая
Этаж
Описание
●безопасная огражденная пешеходная придомовая территория;
●индивидуальная газовая котельная;
●бесплатное машиноместо для каждой квартиры;
●грузопассажирские лифты;
●комплексная система видеонаблюдения (парковка, дворы, коридоры, кабины лифтов);
●видеодомофоны с face ID;
●«умные» приборы учета электричества, воды и тепла;
●кредит на строительство 13,25% сроком на 20 лет;
Объект долевого строительства передается без выполнения чистовых отделочных работ – полы, стены и потолки – железобетонные панели; двери входные – металлические; окна – ПВХ стеклопакет; санитарно-техническое оборудование – унитаз с бачком.
Общая площадь указана по СНБ.
Лицензия: 02240/446 МЮ РБ, 11.07.2022
Параметры объекта
- Количество комнат
2
- Раздельных комнат
1
- Площадь общая
60.3 м²
- Площадь жилая
32.4 м²
- Год постройки
2026
- Этаж / этажность
4 / 5
- Тип дома
Панельный
- Балкон
Лоджия
- Ремонт
Без отделки
- Высота потолков
2.5 м
- Санузел
Раздельный
- Собственность
Частная
- Условия продажи
Чистая продажа
- Номер договора
868/1 от 12.11.2025
Александр
Контактное лицо
Примечание
Местоположение
- Область
- Район
- Населенный пункт
- Улица
- Номер дома
11/В
- Координаты
54.611791518, 25.961825079
