2-комнатная квартира ул. Лидская д. 3
294 140 р.
4 806 р.≈ 1 714 $ за м²
Общая
Жилая
Этаж
Описание
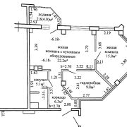
Продается современная 2-комнатная квартира рядом с центром города ул. Лидская дом 3 в г.Гродно 3 этаж-14 этажного монолитного жилого дома. Год постройки 2018. Площадь общая/жилая 61.2/ 47.0
Квартира для эстета, сочетающего изысканный вкус и практичность!
Идеальной планировкой предусмотрено: кухня 22.2 м2 совмещенная с полноценной гостиной и выделенной обеденной зоной, спальные комнаты 15.0 м2, 9.8 м2 , сан.узел 5.1 м2.
Выполнен дизайнерский ремонт с применением натуральных дорогостоящих материалов. Полностью укомплектована мебелью и бытовой техникой !
В шаговой доступности ( школа № 11, ясли-сад № 63 , магазины, Тренажерный зал Titan, автовокзал, Центральный рынок). Прекрасный вид из панорамных окон для Ваших утренних медитаций.
Квартира только для Вас, наш дорогой покупатель! Звоните по телефону и пишите Viber, Telegram. Возможен торг!
Параметры объекта
- Количество комнат
2
- Раздельных комнат
2
- Площадь общая
61.2 м²
- Площадь жилая
47 м²
- Год постройки
2018
- Этаж / этажность
3 / 14
- Балкон
Лоджия
- Собственность
Частная
- Условия продажи
Чистая продажа
- Номер договора
473/17 от 25.09.2025
Примечание
Местоположение
- Область
- Район
- Населенный пункт
- Улица
- Номер дома
3
- Район города
- Координаты
53.6733, 23.8526
