Купить дом, д. Белые Болоты (Гродненский р-н, Гродненская область)
151 258 р.
Тип
Участок
Общая
Жилая
Описание
В продаже дом (незавершенное строительство), д. Белые Болоты, 20 км. от Гродно, направление Привал.
Характеристика объекта:
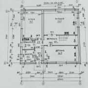
Блочный, 2-х этажный дом.
Площадь: общая 131,6 м2, жилая 86,2 м2, кухня 13,7 м2, 2 ванные комнаты, 6 жилых комнат.
Окна: современные стеклопакеты ПВХ.
Двери: усыновлены 2 новые современные входные группы.
Полы: в одной из комнат – готовая стяжка.
Электричество: в наличии на участке, счетчики вынесены за пределы участка.
Канализация: выведена из дома, имеется место под септик. Возможно подключение к центральной канализации.
Водоснабжение: колодец на участке с чистейшей питьевой водой. Есть возможность подключения к центральному водоснабжению.
Отопление: газ идет по улице, напротив центрального входа на участок.
Комнаты просторные и светлые.
Имеется черновая лестница на 2 этаж.
Возможно также использование мансардного помещения.
На территории имеется строительный песок.
Дом огорожен сеткой по периметру, центральный вход металлический профиль (калитка и ворота для въезда машины). На участке имеется место для парковки несколько автомобилей.
Дом сухой, не подвержен подтоплениям.
Участок: очень просторный, солнечный, правильной формы, чистый. За участком и насаждениями осуществляется постоянный уход.
Площадь: 0,1503 га.
Имеется водоем глубиной 3 м. на террироии, пополняемое за счет подземных воз. Озеро имеет правильную форму. Населено рыбой разных видов.
Зеленые насаждения: множество различных плодоносных деревьев и ягодных кустарников. Различные виды декоративных туй. Более 10 кустов декоративных роз, в том числе плетущиеся. Плодородная почва обеспечит высокие урожаи без дополнительного внесения удобрений.
На территории имеется дом, который может быть использован под хоз. постройку или бытовку общей площадью 40,3 м. кв., с печным отоплением, кухней и зоной отдыха.
Дом расположен вблизи красивейших лесов и полей на тихой и спокойной улице, вдали от активного проезжающего транспорта. В 3-х минутах пешей ходьбы – магазин продовольственных и промышленных товаров. В 2-х минутах остановка общественного транспорта. Стоимость проезда от Гродно и обратно - бюджетная. В непосредственной близости (д. Лойки) находится медицинский блок, администрация, дет. сад и школа, почта, магазины и все что необходимо для качественной жизни.
В 10 минутах на машине производственное предприятие расположило свои цеха и предлагает трудоустройство.
Также по дороге расположены База отдыха «Привал», питомник с различными видами деревьев и кустарников, а также цветами.
До Августовского канала (судоходный канал в Подляском воеводстве Польши и в Гродненской области Беларуси, соединяющий реки Вислу и Неман) 13 км, до реки Неман 1,5 км., в 9 км расположен Дворцово-парковый комплекс «Вялікі Свяцк Валовічаў» — одно из ярчайших исторических мест Беларуси.
Дорога до д. Белые Болоты — это новое дорожное полотно и превосходные виды.
Дом граничит с соседями только с одной стороны, что позволяет наслаждаться покоем и полным уединением. Соседи – доброжелательные люди, с которыми поддерживаются хорошие отношения.
! Если возможность приобретения соседнего, смежного участка.
Живописное место и близнаходящиеся достопримечательности, огромная территория и возможность приобретения смежного участка, уединение и хорошее транспортное сообщение – это отличная возможность для строительства агро / эко усадьбы.
Все постройки на участке (дом в строительстве и хоз. постройка) застрахованы на случай чрезвычайных ситуаций.
Отличный дом в одной из лучших локаций вблизи г. Гродно.
Успейте стать его счастливым обладателем! Звоните прямо сейчас!
Агентство недвижимости «РиэлтЭлит»
УНП 591052742
Лицензия № 02240/510 от 06.06.2025
на право осуществления деятельности по оказанию
риэлтерских услуг.
Параметры объекта
- Тип объекта
Дом
- Площадь участка
14.8 соток
- Площадь общая
131.6 м²
- Площадь жилая
86.2 м²
- Уровней в доме
2
- Материал стен
Силикатные блоки
- Отопление
Нет
- Газ
Нет
- Канализация
Местная
- Электроснабжение
Есть
- Вода
Колодец
- Статус земли
Частная собственность
- Условия продажи
Чистая продажа
- Номер договора
4/2 от 25.06.2025
Инфраструктура
Водоем
Сад
ООО "РиэлтЭлит"
Контактное лицо
Примечание
Местоположение
- Область
- Район
- Населенный пункт
- Координаты
53.801261, 23.808149
