Дом с баней в СТ ПОГОРАНЫ.
155 023 р.
Тип
Участок
Общая
Описание
Продаётся дом с баней в СТ ПОГОРАНЫ. Участок 9,19 соток, правильной прямоугольной формы, ровный по рельефу. До областного центра 15 км.
Дом под отделку. На участке из хоз. построек имеется: баня с предбанником и комнатой отдыха, а также пристроенный гараж.
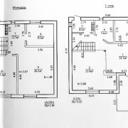
Дом 2015 года постройки, 2 этажный (мансардный). Площадь 1 этажа — 67,3 м2, мансардный этаж — 69.0 м2, лестница — 6,3 м2.
Форма собственности — частная. Дом зарегистрирован.
Фундамент высота 2,5 м, плотноармированный, толщина сяжки пола 1-го этажа — 100 см. Дом кирпично-блочный. Крыша — металопрофиль. Крыша утеплена. Окна стеклопакеты ПВХ.
Дом под внутреннюю отделку. Из коммуникаций: свет — подведен к дому, вода — нет, отопление — нет.
Баня 2015 года постройки, 2 этажа (мансардный) с пристроенным гаражом либо можно использовать как складское помещение. Площадь ~ 75 м2. Разведена и подключена электрика и сантехника.
Забор по всему периметру участка.
Хорошие соседи.
За более подробной информацией просьба обращаться по телефону указанному в объявлении. Доступны все мессенджеры. Чистоту сделки гарантируем! Поможем продать вашу недвижимость для покупки данного варианта! Работаем с привлечение кредита.
Параметры объекта
- Тип объекта
Коттедж
- Площадь участка
9.2 соток
- Площадь общая
142.6 м²
- Год постройки
2015
- Материал стен
Силикатные блоки
- Газ
Нет
- Канализация
Нет
- Электроснабжение
Есть
- Вода
Нет
- Баня
Есть
- Гараж
Есть
- Статус земли
Частная собственность
- Возможен торг
Да
- Условия продажи
Чистая продажа
- Номер договора
255/1 от 29.04.2025
Инфраструктура
Беседка
Рядом лес
Светлана
Контактное лицо
Примечание
Местоположение
- Область
- Район
- Населенный пункт
- Номер дома
163
- Сельсовет
Коптёвский с/с
- Координаты
53.624473897, 23.935223717
