Продажа здания под офис, услуги, торговлю, г. Гомель, ул. Советская, 66А
8 455 800 р.
Тип
Площадь
Описание
Помещения под офисы, сферу услуг, магазин
г. Гомель, ул.Советская, 66А
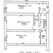
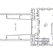
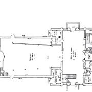
Площади: 1 233.5 м2
Покупатель не оплачивает услуги риэлтерской организации!
Здание расположено в центре города на одной из главных транспортных артерий города.
Преимущественное местоположение с активным пешеходным трафиком и развитой инфраструктурой способствует эффективному управлению своим временем: рядом находятся отделения банков, ЦУМ, McDonald's, социально значимые объекты. Расположение рядом с перекрестком обеспечивает удобные подъезды.
Здание располагает своей парковкой.
Ваш агент - Андрей Смолка
Подробнее см. на САЙТЕ www.silvan7800.by
Договор №6/3 от 12.02.2026 по 11.02.2028
Параметры объекта
- Тип объекта
Здание
- Площадь участка
16.66 соток
- Площадь общая
1233.50 м²
- Этажность
2
- Год постройки
2005
- Материал стен
Кирпичный
- Ремонт
Хороший
- Отопление
Есть
- Электроснабжение
Есть
- Естественное освещение
Есть
- Вода
Есть
- Санузел
Есть
- Количество телефонов
Больше пяти
- Парковка
Есть
- Принадлежность объекта
Частная
- НДС
НДС включен
- Юридический адрес
Да
- Номер договора
6/3 от 11.02.2026
Оснащение
Оживленное место
Отдельный вход
Андрей Смолка
Контактное лицо
Примечание
Местоположение
- Область
- Район
Гомельский район
- Населенный пункт
- Улица
- Номер дома
66/А
- Район города
- Микрорайон
- Координаты
52.440048783, 31.003225712


