Купить здание, г. Гомель, ул. Луговая, 1/В
449 567 р.
1 635 р.≈ 580 $ за м²
Продажа
Следить за ценой
Здание
Тип
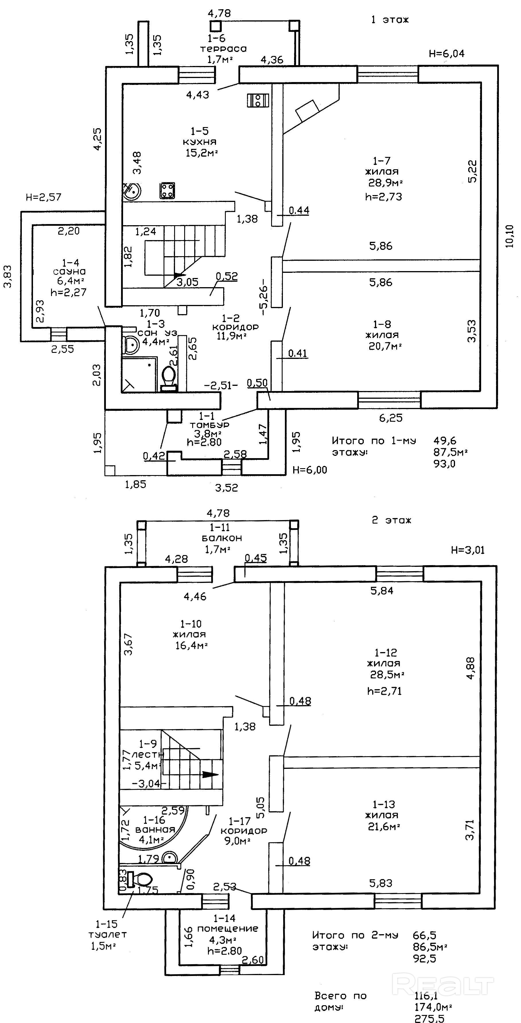
275 м²
Площадь
10.02.2026ID 1223868
Параметры объекта
- Тип объекта
Здание
- Площадь участка
10 соток
- Площадь общая
275 м²
- Год постройки
2010
- Материал стен
Кирпичный
- Ремонт
Отличный
- Отопление
Есть
- Электроснабжение
380В
- Естественное освещение
Есть
- Вода
Горячая
- Газ
Есть
- Санузел
2 санузла
- Оборудование
Есть
- Количество телефонов
1 телефон
- Принадлежность объекта
Частная
- Юридический адрес
Да
Оснащение
Отдельный вход
Интернет
Мебель
Продавец
Валерий
Контактное лицо
Примечание
Качественный ремонт на всех этажах. Экономичное отопление на газу. 380В. Участок 10 соток расположен рядом с автомагистралью российского направления, в зеленой зоне, с трех сторон из четырех соседей нет, и не будет. Удобный подъезд транспорта. Парковка на участке. Аккуратное ландшафтное оформление. Все готово для любого бизнеса. .+ 90м.кв. мансардного помещения с естественным освещением бесплатно.
Местоположение
- Область
- Район
Гомельский район
- Населенный пункт
- Улица
- Номер дома
1/В
- Район города
- Микрорайон
- Координаты
52.4063, 31.0249
