Продам комплекс Капитальных строений в центральной части г. Бреста, пер. 1 Мая, 15
148 217 р.
Тип
Площадь
Этаж
Описание
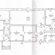
Продам комплекс Капитальных строений в центральной части г. Бреста, пер. 1 Мая, 15, общая площадь 472,6 кв.м., в том числе:
- Капитальное строение площадь 271,8 кв.м., назначение – Здание специализированное иного назначения, наименование – Здание производственного участка.
- Капитальное строение площадь 138,5 кв.м., назначение – Здание специализированное складов, торговых баз, баз материально-технического значения, наименование – Складское помещение для хранения спец инвентаря.
- Капитальное строение площадь 62,3 кв.м., назначение – Здание специализированное коммунального хозяйства, наименование – Котельная.
Расположены на земельном участке, площадь 0,1989 Га.
Удобное расположение в центральной части Бреста, развитая инфраструктура, наличие подъездных путей, отсутствие каких либо обременений.
Характеристика объекта: год постройки - 1953, фундамент – бетон, наружные стены – брус облицован силикатным кирпичом, внутренние стены – брус, перегородки – доска, перекрытия – дерево, кровля – шифер, полы – нет, окна – нет, двери/ворота – металл/дерево, отопление – нет, водоснабжение – централизованное, канализация – местная, электроснабжение – централизованная система 45 кВт, территория участка покрыта асфальтобетонным покрытием, территория огорожена бетонным забором (длина 87,9 м.).
Договор №451/2 от 16.10.2023 года.
Лицензия №02240/269 выдана МЮ РБ от 21 марта 2014 года.
УНП: 291267309.
Параметры объекта
- Тип объекта
Склад
- Площадь участка
19.89 соток
- Площадь общая
472.60 м²
- Этаж / этажность
1 / 1
- Раздельных помещений
5
- Материал стен
Кирпичный
- Высота потолков
3.5 м
- Ремонт
Нормальный
- Отопление
Есть
- Электроснабжение
Есть
- Естественное освещение
Есть
- Вода
Есть
- Газ
Есть
- Санузел
Есть
- Парковка
Есть
- Принадлежность объекта
Частная
- НДС
НДС нет (0%)
- Юридический адрес
Да
- Номер договора
451/2 от 15.10.2023
Примечание
Местоположение
- Область
- Район
- Населенный пункт
- Улица
- Номер дома
15
- Район города
- Координаты
52.100938911, 23.686428669
