Продается просторное нежилое помещение 141.7 м² с отдельным входом и парковкой!
126 837 р.
Тип
Площадь
Этаж
Описание
Продается просторное нежилое помещение 141.7 м2 с отдельным входом и парковкой
г. Барановичи, ул. Промышленная, 11а
Перспективное помещение для вашего бизнеса с отличной транспортной доступностью и инфраструктурой.
Ключевые преимущества:
-
Выгодное расположение: Находится в здании общежития ЖРЭУ, рядом с магазином «Копеечка», что обеспечивает хорошую проходимость и доступность.
-
Отдельный вход и парковка: Полная автономность и комфорт для вас и ваших клиентов.
-
Готовая инфраструктура: Подведены все необходимые коммуникации: центральное отопление, электроэнергия и водоснабжение по индивидуальным приборам учета, санузел.
-
Удачная планировка: Пространство готово для гибкого зонирования.
-
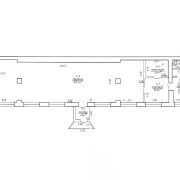
Большой зал: 109.7 м2 — идеален для торгового зала, шоу-рума, офиса open-space, мастерской или кафе.
-
Изолированные комнаты: Проходная комната (10.2 м2), комната (9.5 м2) и комната-сейф (6.4 м2) — подойдут для кабинетов, подсобок, склада ценных товаров или гардеробной.
Result Estate — ваш надёжный партнёр на рынке недвижимости.
20 лет опыта наших агентов по недвижимости — это ваш ключ к идеальной сделке: глубокое знание рынка, эксклюзивные предложения, юридическая безопасность и индивидуальный подход. Мы экономим ваше время, деньги и нервы, помогая купить, продать недвижимость быстро, выгодно и с уверенностью в результате!
Все актуальные предложения в одном месте — смотрите на нашем сайте.
Опишите свои пожелания — и мы оперативно подберем для вас лучшие варианты!
ООО «Результативная недвижимость», лицензия выдана Минюстом 26.09.2023 № 02240470, УНП 193703497
Связываясь с нами по данному объекту, Вы даете свое согласие на сбор и обработку персональных данных автоматически.
-
Параметры объекта
- Тип объекта
Торговое помещение
- Площадь общая
141.70 м²
- Этаж / этажность
1 / 5
- Раздельных помещений
3
- Ремонт
Нормальный
- Отопление
Есть
- Электроснабжение
Есть
- Естественное освещение
Есть
- Вода
Есть
- Санузел
Есть
- Парковка
Есть
- Принадлежность объекта
Частная
- НДС
НДС нет (0%)
- Номер договора
191/1 от 15.09.2025
Оснащение
Оживленное место
Отдельный вход
Павел Винников
Агент по недвижимости
Примечание
Местоположение
- Область
- Район
- Населенный пункт
- Улица
- Номер дома
11/А
- Координаты
53.1541, 26.0179
