Здание магазина - 940444
от 676 464 р.
от 1 091 р.≈ от 387 $ за м²
Тип
Площадь
Этаж
Описание
Приобретая данный объект, ПОКУПАТЕЛЬ не платит комиссию агентству.
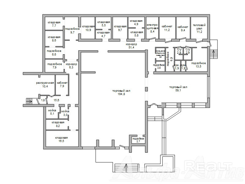
Здание магазина в собственность (назначение- здание специализированное розничной торговли) общей площадью 620,2 кв.м. в микрорайоне Дубровка города Бреста. Отдельностоящее капитальное строение. Имеются 2 (два) торговых зала площадью 194,8 и 59,1 кв.м, а также административные, подсобные и складские помещения разной площади. Высота потолков - 2,7 м. Имеется погрузочно-разгрузочная рампа. Все центральные коммуникаци, собственный теплоузел. Установлены индивидуальные приборы учета электро, водоснабжения и теплоснабжения, оборудована приточно-вытяжная вентиляция. Земельный участок общей площадью 0,1542 га предоставлен собственнику на праве постоянного пользование для обслуживания здания. Территория магазина огорожена бетонным забором, имеется парковка перед зданием. Цена указана с НДС. Договор № 444/1 от 31.07.2024, ЗАО «Альфа-Актив», УНП 290426827, лицензия № 02240/92 от 29.12.2005 на право осуществления деятельности по оказанию юридических услуг (риэлтерские услуги).
Параметры объекта
- Тип объекта
Торговое помещение
- Площадь участка
15.42 соток
- Площадь общая
620.20 м²
- Этаж
1
- Материал стен
Кирпичный
- Отопление
Есть
- Электроснабжение
Есть
- Вода
Есть
- Санузел
Есть
- Номер договора
940444 от 30.07.2024
Кравчук Николай
Контактное лицо
Примечание
Местоположение
- Область
- Район
- Населенный пункт
- Улица
- Район города
- Координаты
52.128067, 23.649237
