Продам Торговое помещение, Брест, Московская, 204
1 966 602 р.
3 623 р.≈ 1 285 $ за м²
Тип
Площадь
Этаж
Описание
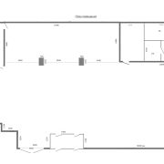
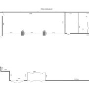
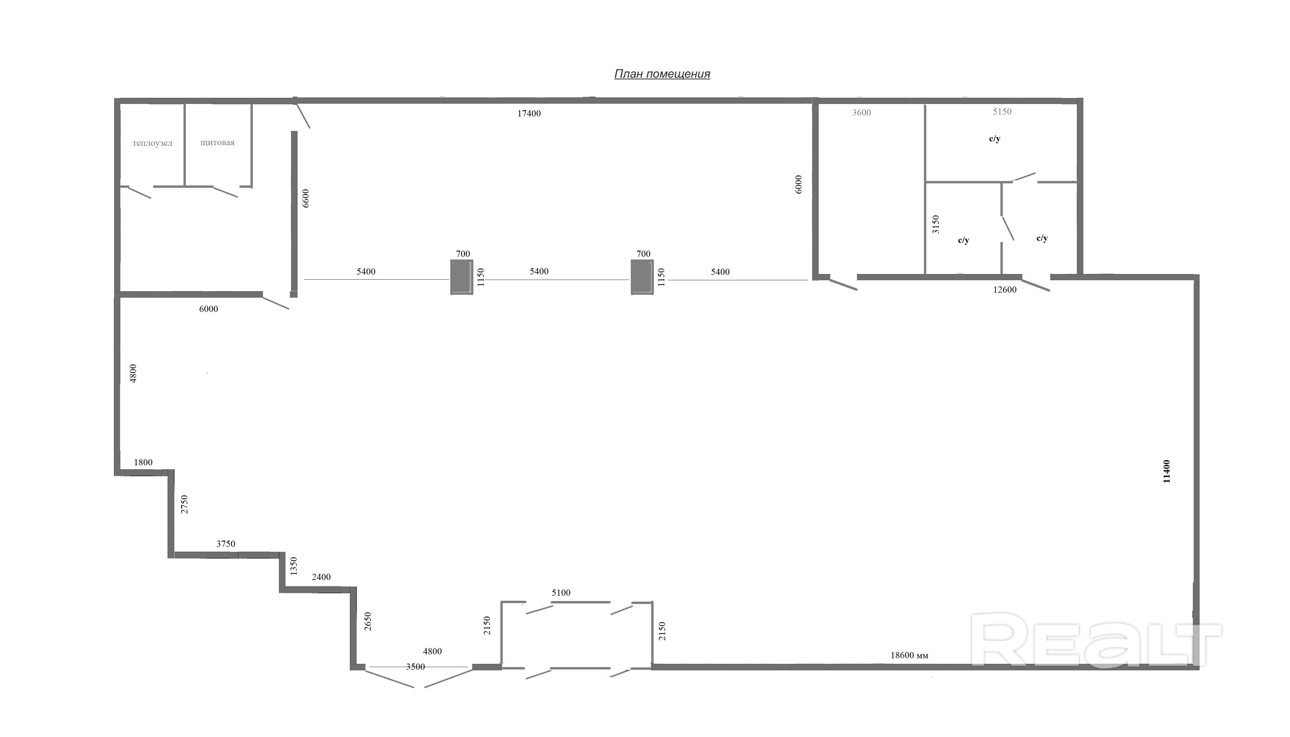
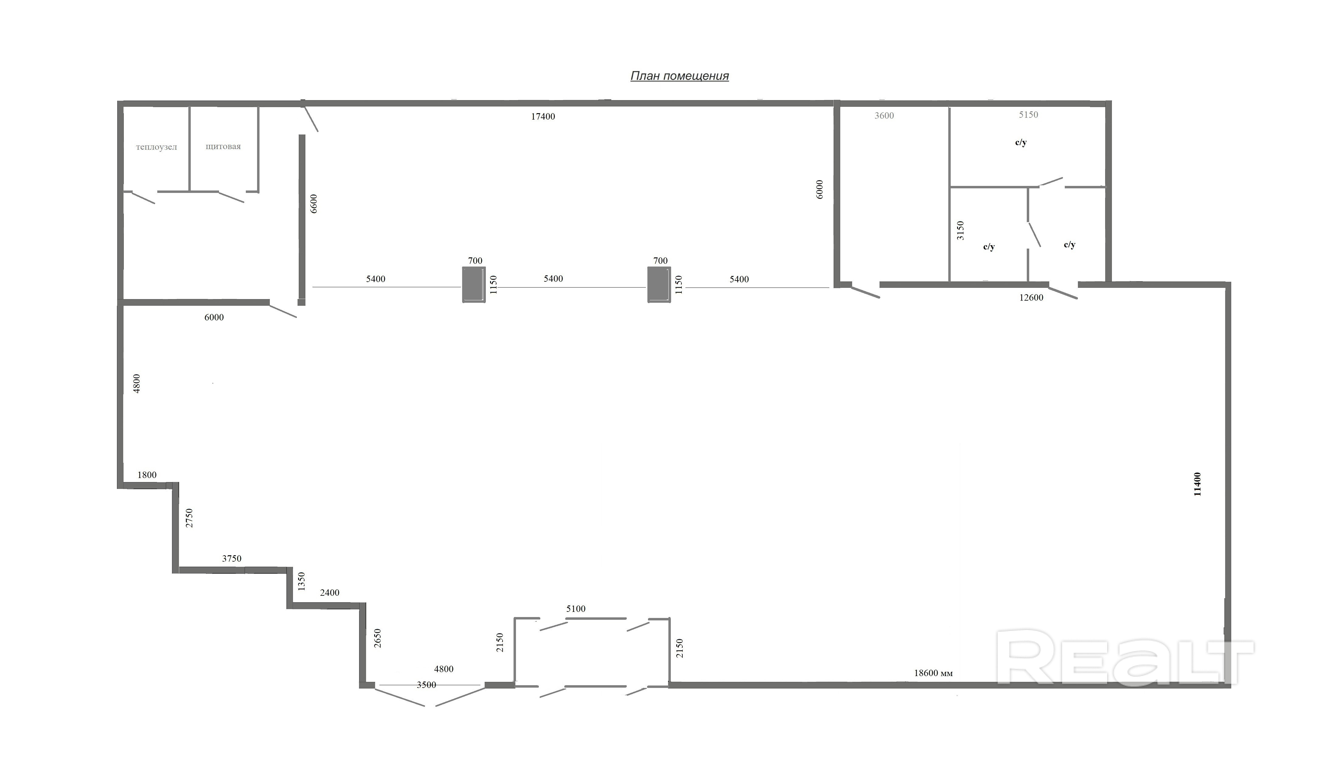
Продам в центре Бреста, ул. Московская, 204, Торговое изолированное помещение, площадь 542,8 кв.м., первый этаж, земельный участок в доле 0,12 га. (аренда 2065 год), район ТЦ "Корона", ТЦ "Fashion Gallery", ТЦ "Domus City", оживленное место, высокий трафик, плотная коммерческая застройка, парковка, удобные подъездные пути, рядом расположена остановка общественного транспорта, подсобные помещения, с отделкой (потолок армстронг, пол плитка, стены декоративная отделка), электрика скрытая электропроводка 220/380В (максимальная нагрузка 36 кВт), высота потолков 3,5 м., приточно-вытяжная вентиляция, пожарная сигнализация, ворота для разгрузки, раздельный санузел, широкие витражные окна, все коммуникации.
Стоимость кв.м. 1100 е., всего объекта 597080 е., НДС нет.
Договор №124/2 от 06.04.2023 года.
Лицензия №02240/269 выдана МЮ РБ от 21 марта 2014 года.
УНП: 291267309.
https://reality.by/
Параметры объекта
- Тип объекта
Стрит ритэйл
- Площадь участка
12 соток
- Площадь общая
542.80 м²
- Этаж / этажность
1 / 1
- Раздельных помещений
5
- Материал стен
Кирпичный
- Высота потолков
4 м
- Ремонт
Хороший
- Отопление
Есть
- Электроснабжение
Есть
- Электрическая мощность
36 кВт
- Естественное освещение
Есть
- Вода
Есть
- Санузел
2 санузла
- Количество телефонов
Больше пяти
- Парковка
Есть
- Принадлежность объекта
Частная
- НДС
НДС нет (0%)
- Юридический адрес
Да
- Номер договора
124/2 от 05.04.2023
Оснащение
Оживленное место
Отдельный вход
Примечание
Местоположение
- Область
- Район
- Населенный пункт
- Улица
- Номер дома
204
- Район города
- Микрорайон
- Координаты
52.095874, 23.740036

