1-комн. просторная квартира г. Ляховичи, ул. Ленина, 39
64 828 р.
1 640 р.≈ 582 $ за м²
Общая
Жилая
Кухня
Этаж
Описание
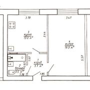
Продается уютная, очень теплая, однокомнатная квартира с большой кухней - 13,0 кв.м. и комнатой 19,3 кв.м. в г. Ляховичи, ул. Ленина, д.39.
Квартира находится на втором этаже 4-х этажного кирпичного дома 1972 года постройки.
Установлены стеклопакеты, входная металлическая дверь, межкомнатные - МДФ, на полу линолеум и плитка, санузел совмещен, имеется бойлер.
Квартира продается с мебелью и бытовой техникой, полностью готова к проживанию.
Во дворе много парковочных мест, развитая инфраструктура, школа, детский сад, магазин.
Удобная транспортная доступность в любую точку города.
Приглашаем на просмотр в удобное для Вас время.
Готовы услышать Ваши предложения и оказать профессиональную помощь в продаже Вашей недвижимости.
В нашем агентстве Вы получите бесплатную консультацию любой сложности в сфере недвижимости.
Параметры объекта
- Количество комнат
1
- Площадь общая
39.5 м²
- Площадь жилая
19.3 м²
- Площадь кухни
13 м²
- Площадь по СНБ
39.5 м²
- Год постройки
1972
- Этаж / этажность
2 / 4
- Тип дома
Кирпичный
- Высота потолков
2.5 м
- Санузел
Совмещенный
- Стоянка автомобиля
Есть
- Возможен торг
Да
- Собственность
Частная
- Условия продажи
Чистая продажа
- Номер договора
20/7 от 16.04.2026
Примечание
Местоположение
- Область
- Район
- Населенный пункт
- Улица
- Номер дома
39
- Координаты
53.0357, 26.2679
