Отличная квартира в деловой части Бреста
187 027 р.
5 042 р.≈ 1 798 $ за м²
Общая
Жилая
Кухня
Этаж
Описание
ОТЛИЧНАЯ КВАРТИРА В ДЕЛОВОЙ ЧАСТИ ЦЕНТРА.
Дом кирпичный , чешский проект, минимум соседей и панорамный вид из окон. Полноценный технический этаж сверху, новый лифт.
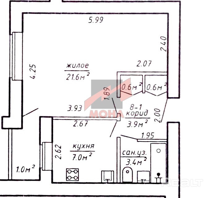
Комната с нишей 21,5 м2, кухня 7м2, лоджия с выходом из комнаты, санузел совмещенный. В кухне установлен бойлер подогрева воды и кухонный гарнитур.
В квартире недавно был сделан качественный капитальный ремонт с заменой всех инженерных сетей, установкой окон, сантехники, выравниванием стен и пола ( новая стяжка), на полах и стенах керамогранит и ламинат 33 класса.
В коридоре установлен просторный шкаф- купе и дорогая входная дверь с повышенной шумоизоляцией.
Готовый вариант на сдачу в аренду без дополнительных вложений !
Удобная локация по всем критериям.
Продажа без подбора варианта и других технических сложностей. Никто не проживает, покажем по договоренности. БЕЗ ТОРГА.
Параметры объекта
- Количество комнат
1
- Площадь общая
37.1 м²
- Площадь жилая
21.5 м²
- Площадь кухни
7 м²
- Площадь по СНБ
38.1 м²
- Год постройки
1980
- Этаж / этажность
9 / 9
- Тип дома
Кирпичный
- Планировка
Чешский проект
- Балкон
Лоджия
- Ремонт
Отличный
- Высота потолков
2.5 м
- Санузел
Совмещенный
- Стоянка автомобиля
Есть
- Собственность
Частная
- Условия продажи
Чистая продажа
- Номер договора
3/6 от 09.02.2026
Удобства
Интернет
Лифт
Примечание
Местоположение
- Область
- Район
- Населенный пункт
- Улица
- Номер дома
92
- Район города
- Координаты
52.0922, 23.7016
