3 – комнатная квартира ул. Тельмана, д. 185
107 107 р.
1 607 р.≈ 570 $ за м²
Чистая продажа
Следить за ценой
66.7 м²
Общая
40.5 м²
Жилая
9.2 м²
Кухня
5 из 5
Этаж
7 часов назадID 4010754
Описание
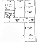
В продаже 3 – комнатная квартира по ул. Тельмана, д. 185, находящаяся в 5-этажном панельном доме 1987 г. п. на 5-ом этаже.
Квартира общей площадью по СНБ – 72 м2, общая площадь - 66.7 м2, жилая – 40,5 м2, кухня – 9,2 м2, с/у раздельный.
- Окна – стеклопакеты;
- 2 застекленные стеклопакетами лоджии;
- Полы – линолеум, дсп;
- Заменены трубы;
- Ухоженный подъезд.
Район с развитой инфраструктурой и прекрасным транспортным сообщением. В шаговой доступности магазины, почта, аптека, Алексеевский рынок, ближайшая школа №17 и №20, дет. сад №25 и №3.
По интересующим вопросам, звоните!
Параметры объекта
- Количество комнат
3
- Раздельных комнат
3
- Площадь общая
66.7 м²
- Площадь жилая
40.5 м²
- Площадь кухни
9.2 м²
- Площадь по СНБ
71.9 м²
- Год постройки
1987
- Этаж / этажность
5 / 5
- Тип дома
Панельный
- Балкон
Лоджия
- Санузел
Раздельный
- Собственность
Частная
- Условия продажи
Чистая продажа
- Номер договора
5/11 от 14.01.2026
Примечание
В продаже 3 – комнатная квартира по ул. Тельмана, д. 185, находящаяся в 5-этажном панельном доме 1987 г. п. на 5-ом этаже.
Местоположение
- Область
- Район
- Населенный пункт
- Улица
- Номер дома
185
- Координаты
53.1313, 26.0772


