Часть дома в статусе квартиры по ул. Горького
53 272 р.
868 р.≈ 308 $ за м²
Общая
Жилая
Этаж
Описание
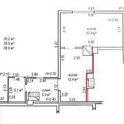
Продается часть дома в статусе квартиры по ул. Горького. Две смежные квартиры с общей стеной, в которой можно сделать дверной проем и объединить в одну 3-комнатную квартиру. Имеется разрешение на реконструкцию.
Общая площадь по СНБ 2-комнатной квартиры - 38,6 м2, жилая - 30,2 м2, кухня - 5,3 м2.
Общая площадь по СНБ 1-комнатной квартиры - 22,7 м2, жилая - 13,6 м2.
Коммуникации:
* Вода - центральная;
* Канализация - местная;
* С/у - на улице;
* Отопление - печное;
* Газ - подведен к дому, необходимо подключиться;
* Электричество, заведено оптоволокно.
Участок примерно 6 соток, имеется два хоз. блока из дерева, асфальтированные подъездные пути. В шаговой доступности есть все необходимое для комфортного проживания: продуктовые магазины, школа № 14, ЕРСЦ, БТИ, Центральная поликлиника, остановка общественного транспорта. Подробнее по телефону, звоните!
Параметры объекта
- Количество комнат
3
- Раздельных комнат
2
- Площадь общая
61.3 м²
- Площадь жилая
43.8 м²
- Год постройки
1920
- Этаж / этажность
1 / 1
- Собственность
Частная
- Условия продажи
Чистая продажа
- Номер договора
111/11 от 20.08.2025
Примечание
Местоположение
- Область
- Район
- Населенный пункт
- Улица
- Координаты
53.131217, 26.003056
