Трехкомнатная квартира, ул. Л. Рябцева - 250158
214 214 р.
2 737 р.≈ 971 $ за м²
Общая
Жилая
Кухня
Этаж
Описание
№ 250158
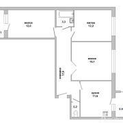
Приобретая данный объект ПОКУПАТЕЛЬ не платит комиссию агентству. 3- комнатная квартира, г. Брест, Лт. Рябцева ул., 2011 г.п., 4/7 кирпичный, 82,8/78,3/43,3/11,6 кв.м., с/у раздельный. Квартира в хорошем состоянии для комфортного проживания. ПВХ, полы ламинат, стены окрашены. Встроенная кухня с бытовой техникой. Чистый, ухоженный подъезд. Благоустроенный двор, облагороженная придомовая территория с обустроенной детской площадкой, со стоянкой для автомобилей. Район с развитой инфраструктурой, рядом с домом расположены: продовольственный магазин, аптека, школа, садик, магазин хозяйственных товаров. Хорошая транспортная развязка, в шаговой доступности остановка общественного транспорта. Отличный вид из окон. Возможен торг. Лот 250158 Договор № 158/1 от 27.03.2025, ЗАО «Альфа-Актив», УНП 290426827, лицензия № 02240/92 от 29.12.2005 на право осуществления деятельности по оказанию юридических услуг (риэлтерские услуги)
Параметры объекта
- Количество комнат
3
- Раздельных комнат
3
- Площадь общая
78.3 м²
- Площадь жилая
43.3 м²
- Площадь кухни
11.6 м²
- Площадь по СНБ
82.8 м²
- Год постройки
2011
- Этаж / этажность
4 / 7
- Тип дома
Кирпичный
- Планировка
Стандартный проект
- Балкон
Лоджия
- Ремонт
Хороший
- Санузел
Раздельный
- Собственность
Частная
- Условия продажи
Чистая продажа
- Номер договора
250158 от 28.03.2025
Наталья Малец
Контактное лицо
Примечание
Местоположение
- Область
- Район
- Населенный пункт
- Улица
- Район города
- Микрорайон
- Координаты
52.121959, 23.666637
