Таунхаус в Бресте направление 5-го форта - 240734
428 427 р.
4 704 р.≈ 1 669 $ за м²
Общая
Жилая
Кухня
Этаж
Описание
№ 240734
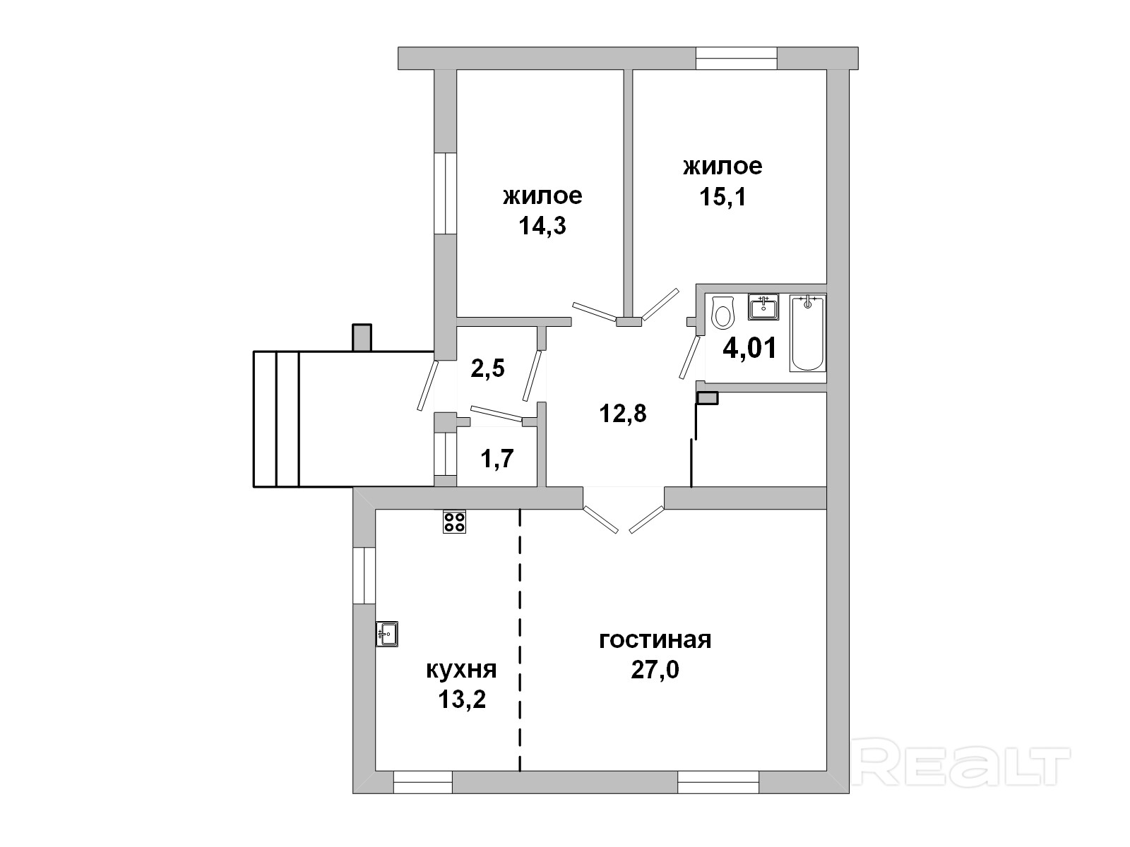
В продаже таунхаус в квартале европейского стиля у 5-го форта в городе Бресте, ул. Нестерчука. Современные жилые даблхаусы - блокированные дома для двух семей, находятся в непосредственной близости к Брестской крепости, реки Буг и границы с Польшей. Общая площадь таунхауса составляет 171 кв.м. Первый этаж площадью 91,05 кв.м, мансардный этаж - 80 кв.м. На первом этаже находится: тамбур 2,5 кв.м., мини-котельная - 1.7 кв.м, коридор - 12,8 кв.м., санузел - 4,01 кв.м., кухня - 13,2 кв.м., гостиная - 27 кв.м., жилые комнаты - 14.3 и 15, 1 кв.м. Планировка отличается функциональностью: в одной половине на первом этаже размещены гостиная комната-столовая - 40 кв.м., в другой части - две спальни. Дом построен на ленточном монолитном фундаменте, стены из газосиликатных блоков 40 мм с наружным утеплением пенополистеролом. Фасад выполнен в современном стиле с использованием комбинации из различных материалов. Перекрытия монолитные железобетонные. Крыша - стропильная, скатная. Покрытие кровли - фальцевая с полимерным покрытием. Стены помещений оштукатурены. Квартира расположена на земельном участке, личный дворик огорожен забором из 3D-сетки, за воротами обустроено парковочное место. Больше автомобилей можно припарковать на улице. Коммуникации все городские. Асфальтированный подъезд к кварталу и удобная транспортная развязка в Центр города (объездная дорога Варшавское кольцо). Достойный вариант для жизни и отдыха Вашей дружной семьи! Звоните, организую просмотр таунхауса в любое удобное для вас время! Лот 240734 Договор № 734 от 14.12.2024, ЗАО Альфа-Актив, УНП 290426827, лицензия № 02240/92 от 29.12.2005 на право осуществления деятельности по оказанию юридических услуг (риэлтерские услуги)
Параметры объекта
- Количество комнат
3
- Раздельных комнат
3
- Площадь общая
91.05 м²
- Площадь жилая
29.51 м²
- Площадь кухни
40.37 м²
- Год постройки
2024
- Этаж / этажность
1 / 1
- Тип дома
Блок-комнаты
- Планировка
Стандартный проект
- Ремонт
Хороший
- Санузел
Раздельный
- Собственность
Частная
- Условия продажи
Чистая продажа
- Номер договора
240734 от 13.12.2024
Инна Вербило
Контактное лицо
Примечание
Местоположение
- Область
- Район
- Населенный пункт
- Улица
- Район города
- Микрорайон
- Координаты
52.058793, 23.682069
