Купить дачу, д. Петровичи, ул. Замошанская (Жабинковский р-н, Брестская область)
337 296 р.
Чистая продажа
Следить за ценой
Дача
Тип
10 сот
Участок
105 м²
Общая
15.09.2025ID 3885693
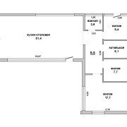
Параметры объекта
- Тип объекта
Дача
- Площадь участка
10 соток
- Площадь общая
105 м²
- Уровней в доме
1
- Год постройки
2022
- Процент готовности
100
- Новостройка
Да
- Материал стен
Силикатные блоки
- Мебель
Есть
- Отопление
На газу
- Газ
Есть
- Канализация
Местная
- Электроснабжение
Есть
- Вода
Центральный водопровод
- Статус земли
Частная собственность
- Условия продажи
Чистая продажа
Инфраструктура
Рядом лес
Водоем
Элитный коттедж
Продавец
Майя
Контактное лицо
Примечание
Современный дом в 20ти минутах езды от центра Бреста
Местоположение
- Область
- Район
- Населенный пункт
- Улица
- Сельсовет
Ракитницкий с/с
- Координаты
52.156714, 24.008895
