Продажа дома рядом с Брестом
138 111 р.
Тип
Участок
Общая
Жилая
Описание
О доме:
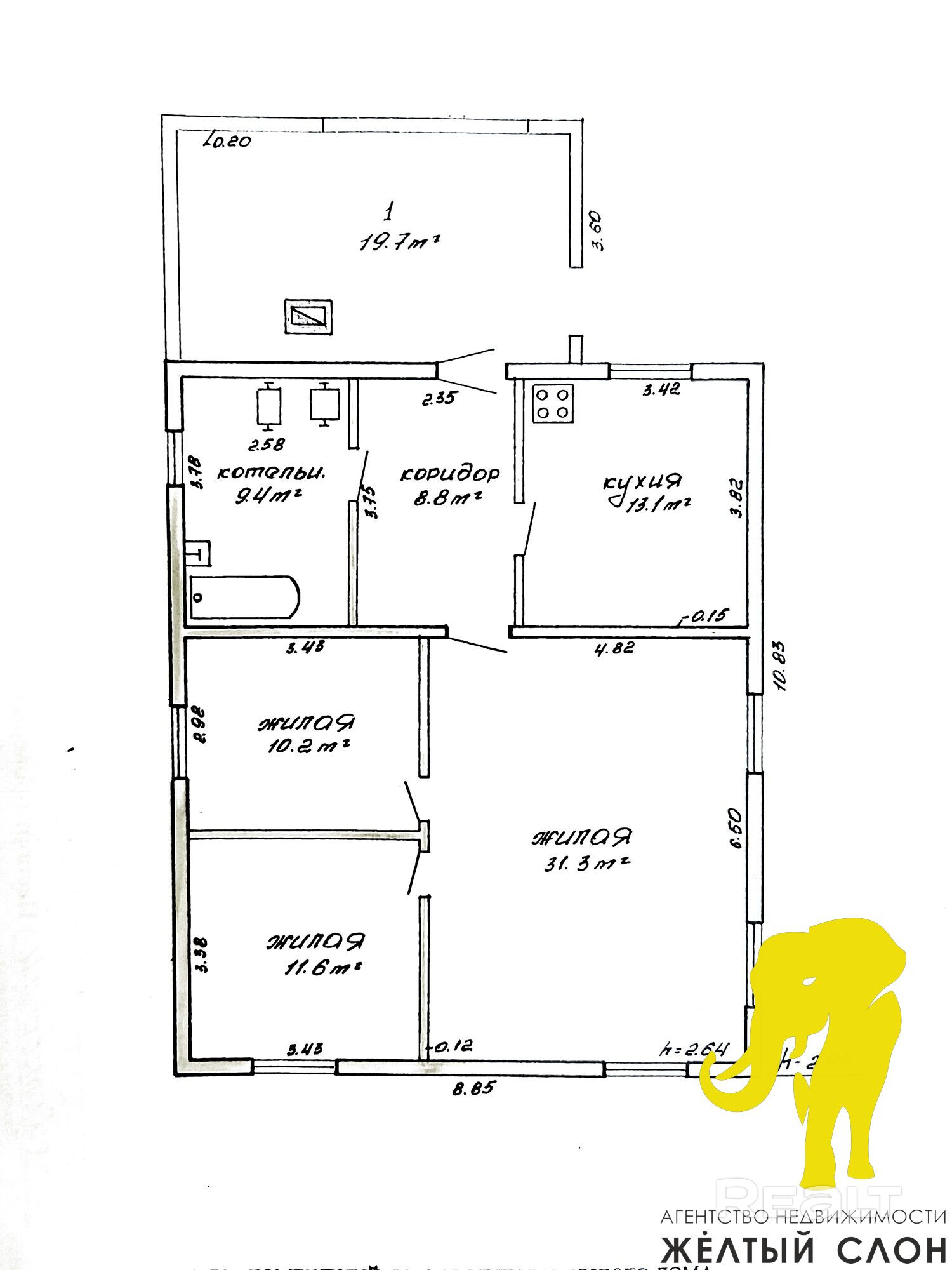
Одноэтажный жилой дом с чердаком. Фундамент - монолитный армированный. Стены – деревянный брус, облицованы сайдингом. Крыша – шифер.
Общая площадь дома – 104,1 м2, жилая – 53,1 м2, кухня – 13,1 м2. Окна –ПВХ, Полы – деревянные, ДВП, линолеум, плитка. Стены – оклеены обоями. Потолки – окрашены.
Коммуникации: отопление – центральное (газовый котёл), водоснабжение – скважина, электричество – центральное, канализация – местная.
Об участке:
Дом расположен на участке, площадью 15,81 сотки. Участок огорожен по периметру, подъезд с асфальта. Есть огород, высажены плодовые деревья и кустарники. Имеется капитальная постройка.
О локации:
Агрогородок с развитой инфраструктурой. Хорошее автомобильное сообщение с Брестом, 1,4 км от трассы М-1.
Звоните, рады будем помочь.
Больше объектов на сайте yellowelephant.by и инстаграм @yellow_elephant_estate
ООО «Агентство недвижимости Жёлтый слон». УНП 291724019 Лицензия № 02240/429 6 от 18.11.2021г. Договор № 18/5 от 10.03.2026
Параметры объекта
- Тип объекта
Дом
- Площадь участка
15.81 соток
- Площадь общая
104.1 м²
- Площадь жилая
53.1 м²
- Площадь кухни
13.1 м²
- Год постройки
2005
- Материал крыши
Шифер
- Отопление
На газу
- Газ
Есть
- Канализация
Местная
- Электроснабжение
Есть
- Вода
Скважина
- Статус земли
Пожизненно наследуемое владение
- Условия продажи
Чистая продажа
- Номер договора
18/5 от 09.03.2026
Yellowelephant
Контактное лицо
Примечание
Местоположение
- Область
- Район
- Населенный пункт
- Сельсовет
Ракитницкий с/с
- Координаты
52.131462, 23.993013
