Купить дом, д. Тюхиничи (Брестский р-н, Брестская область)
366 418 р.
Тип
Участок
Общая
Жилая
Описание
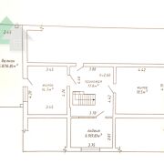
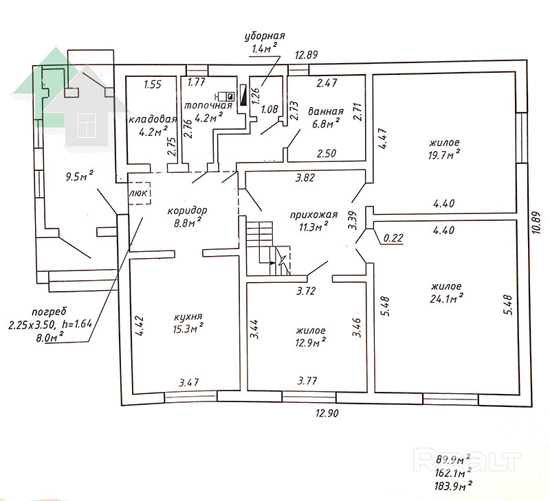
Предлагаем купить дом 2004 г.п. (реконструкция в 2022г.) с земельным участком (частная собственность) 0,1659 га расположен д.Тюхиничи Брестский район. Дом с жилой мансардой. Общая площадь жилого дома 183,9/162,1 кв.м., жилая – 89,9 в.м., кухня 15,3 кв.м. 5 жилых комнат. Есть гараж на участке. Стены: г/с блок/ кирпич; кровля – шифер. В доме удобная планировка. На первом этаже расположена: отдельная кухня 15,3 м2, 3 жилые комнаты, с/у раздельный, кладовая, погреб, дополнительный выход во двор. На втором этаже расположены 2 комнаты, балконы закрытые. Потолки – снежка/натяжные, полы – ламинат. Современный кухонный гарнитур. Ванная комнаты облицованы керамической плиткой, оборудованы сантехникой. Новые межкомнатные двери. Коммуникации: водоснабжение, электричество, газ (отопление - газовый котел) – централизованные, канализация - автономная. Земельный участок площадью 0.1659 га (частная собственность), выполнено благоустройство тротуарной плиткой, газон, ограждении по периметру (въездные ворота откатные), на участке высажены туи, оборудована зона барбекю и закрытая беседка. На участке гараж, хоз постройки, большой огород с плодородной землей. Подъездные пути – асфальт. Рядом продуктовый магазин, остановки. Код 26016 разумный торг. Договор № 16 от 28.01.2026г.
Параметры объекта
- Тип объекта
Дом
- Площадь участка
16.6 соток
- Площадь общая
162.1 м²
- Площадь жилая
89.9 м²
- Год постройки
2004
- Статус земли
Частная собственность
- Условия продажи
Чистая продажа
- Номер договора
26016 от 27.01.2026
Примечание
Местоположение
- Область
- Район
- Населенный пункт
- Сельсовет
Мотыкальский с/с
- Координаты
52.159868, 23.668021
