Уютный дом на земельном участке в Каменецком районе
59 191 р.
Тип
Участок
Общая
Жилая
Описание
Код объекта 10025 : Мы работаем от собственника! Покупая этот объект - Вы не платите агентству комиссию!
Предлагаем крепкий уютный деревянный дом в деревне Демянчицы Каменецкого района.
Фундамент дома- ленточный/ бетон. Стены из строительного бруса Беловежской пущи. Двери и окна дома новые, деревянные. В процессе реконструкции в 2022 году полностью обновлена кровля дома - стропильная система и кровельное покрытие заменено на металлочерепицу. Сделана пристройка из газо-силикатных блоков с санузлом. Отделка санузла не завершена.
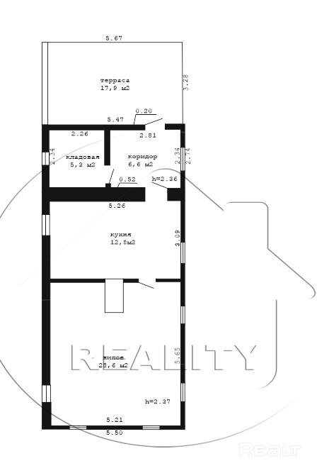
Общая площадь жилого дома 58,7 м2/ жилая 41,4 м2. Жилая часть дома состоит из большой комнаты площадью 28,6 м2, оснащенной мебелью. Кухня 12,8 м2 также с кухонным гарнитуром и бытовой техникой. К дому примыкает терраса, откуда открывается живописный вид на природное окружение.
Инженерные коммуникации: электроснабжение 220В, газ привозной в баллонах. Отопление - печное. Вода - скважина/ гидрофор. Канализация-местная, 2 кольца, дренажная система. Мобильный интернет.
Здесь есть всё необходимое для жизни тех, кто ищет спокойную и размеренную жизнь в единении с природой.
Объект идеален в качестве дома сезонного проживания.
Земельный участок 25 соток в частной собственности. Выкашивается, используется в сельскохозяйственных целях. Огорожен. На участке- гараж с хозблоком из газо-силиката, накрытый металлочерепицей.
Код объекта 10025, лот 10025, договор 100/2 от 30.04.2025г.
Лицензия №02240/269 выдана МЮ РБ от 21 марта 2014 года
Параметры объекта
- Тип объекта
Дом
- Площадь участка
25 соток
- Площадь общая
58.7 м²
- Площадь жилая
28.6 м²
- Площадь кухни
12.8 м²
- Уровней в доме
1
- Процент готовности
100
- Материал стен
Бревенчатый
- Материал крыши
Металл
- Мебель
Есть
- Отопление
Печное
- Газ
Баллон
- Канализация
Местная
- Электроснабжение
Есть
- Вода
Скважина
- Гараж
Есть
- Статус земли
Частная собственность
- Возможен торг
Да
- Условия продажи
Чистая продажа
- Номер договора
10025 от 29.04.2025
Инфраструктура
Водоем
Рядом лес
Хозпостройки
Примечание
Местоположение
- Область
- Район
- Населенный пункт
- Сельсовет
Видомлянский с/с
- Координаты
52.29812, 23.641709
