Снять помещение, г. Брест, ул. Коммерческая
2 846 р.
23 р.≈ 8 $ за м²
Тип
Площадь
Описание
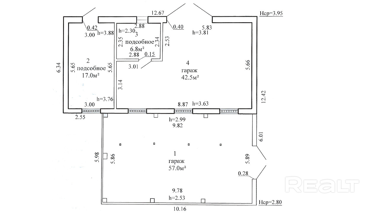
Сдается в Аренду современное многофункциональное помещение Гаражного типа - 123.4 кв.м в м-н Задворцы г. Брест ул. Коммерческая в комплексе других строений на земельном участке (право аренды).
Помещение представляет собой две основные части с двумя въездными воротами - 42.5/57 кв.м, подсобные помещения - 6.8/ 17 кв.м, навес.
Фундамент строений - бетонный, наружные стены- кирпич. Полы выровнены - стяжка (наливные). Ворота - секционные.
Высота потолков - 3.88 и 2.5 м.
Коммуникации: Электричество- 220/380В. Водоснабжение. Водоотведение. Вентиляция
- Оборудовано осветительными и электро приборами (большая общая электрическая мощность)
- Выполнен современный ремонт из качественных материалов
- душевая и санузел внутри
- экономичная собственная котельная
- Установлены собственные приборы учета
- Компрессор
- Видеонаблюдение
- Закрытая территория, автоматическая пропускная система
- Парковка для легковых авто
- Круглосуточный доступ
- Возможно по договоренности услуги вилочного погрузчика, штабелера и рохли
Имеется общая просторная симпатичная асфальтированная огороженная территория оборудованная видеонаблюдением.
Так же возможна аренда других складских и офисных помещений (холодных и отапливаемых) от 85 до 600 кв.м . Асфальтированные подъездные пути.
Звоните! Организуем показ в удобное для Вас время.
Подписывайтесь на наш instagram @result.estate.brest , следите за объектами в продаже.
Result Estate — ваш надёжный партнёр на рынке недвижимости.
20 лет опыта наших агентов по недвижимости — это ваш ключ к идеальной сделке: глубокое знание рынка, эксклюзивные предложения, юридическая безопасность и индивидуальный подход. Мы экономим ваше время, деньги и нервы, помогая купить, продать недвижимость быстро, выгодно и с уверенностью в результате!
Все актуальные предложения в одном месте — смотрите на нашем сайте.
Опишите свои пожелания — и мы оперативно подберем для вас лучшие варианты!
ООО «Результативная недвижимость», лицензия выдана Минюстом 26.09.2023 № 02240470, УНП 193703497
Связываясь с нами по данному объекту, Вы даете свое согласие на сбор и обработку персональных данных автоматически.
Параметры объекта
- Тип объекта
Помещение
- Площадь общая
123.40 м²
- Электроснабжение
Есть
- Вода
Есть
- Санузел
Есть
- Парковка
Есть
- Принадлежность объекта
Частная
- НДС
НДС включен
- Номер договора
21/4а от 14.04.2026
Оснащение
Видеонаблюдение
Примечание
Местоположение
- Область
- Район
Брестский район
- Населенный пункт
- Улица
- Район города
- Координаты
52.132263, 23.76944
