Офисное помещение - 840004
от 5 165 р.
от 23 р.≈ от 8 $ за м²
Тип
Площадь
Этаж
Описание
Объявление № 840004
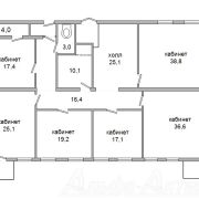
Офисное помещение в аренду общей площадью 224 кв.м. в центре города Бресте. Помещение расположено на 2-м этаже административного здания. Состоит их 6 (шести) кабинетов различной площади. В помещении оборудована серверная комната (проложен 10 парный кабель), имеется комната приема пищи, отдельный санузел. Высота потолков - 3,19 м. Технические характеристики помещения: полы - плитка, ковролин; стены оштукатурены, окрашены; потолок - армстронг; окна - ПВХ. Установлены индивидуальные приборы учета электроэнергии иводоснабжения. Оборудована пожарная сигнализация, установлены кондиционеры, проведено оптоволокно.
Договор № 4/1а от 08.08.2024, ЗАО «Альфа-Актив», УНП 290426827, лицензия № 02240/92 от 29.12.2005 на право осуществления деятельности по оказанию юридических услуг (риэлтерские услуги)
Параметры объекта
- Тип объекта
Офис
- Площадь общая
224 м²
- Этаж
2
- Отопление
Есть
- Электроснабжение
Есть
- Вода
Есть
- Санузел
Есть
- Номер договора
840004 от 07.08.2024
Кравчук Николай
Контактное лицо
Примечание
Местоположение
- Область
- Район
Брестский район
- Населенный пункт
- Улица
- Район города
- Координаты
52.091861, 23.693488
